Verkocht:Regiment 13, 6711 VR Ede - Foto
Verkocht
+42

Regiment 13 6711 VR Ede

  • Woonhuis
  • 4 kamers
  • 3 slaapkamers
  • 1 badkamers
  • Bouwjaar 2017
  • 348 m² perceeloppervlakte
  • 125 m² gebruiksoppervlakte
  • A+++ Energielabel A+++

Beschrijving

Op een prachtige plek in Ede – op het voormalige Elias Beeckman kazernecomplex – staat deze moderne, vrijstaande woning aan Regiment 13 te koop. De woning van bouwjaar 2017 is helemaal instapklaar, levensloopbestendig én duurzaam. Denk aan energielabel A+++, volledige isolatie, een warmtepomp en comfortabele vloerverwarming én vloerkoeling door het hele huis. Met maar liefst 27 zonnepanelen is dit een toekomstbestendige woning. De woning heeft onder andere een slaapkamer en badkamer op de begane grond, een gezellige woonkamer met sfeerhaard en een luxe woonkeuken met directe toegang tot de fraai aangelegde tuin rondom. Je woont hier vlak bij natuurgebied De Sysselt en de Ginkelse Heide. Ook het centrum van Ede, scholen, kinderopvang, zorgvoorzieningen én station Ede-Wageningen zijn allemaal in de buurt. Een toplocatie dus! Benieuwd geworden? Plan dan snel een bezichtiging – je bent van harte welkom!

Indeling

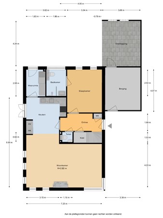
Via de entree kom je in de hal met toegang tot de meterkast (inclusief glasvezelaansluiting), een handige provisiekast, het toilet met wandcloset en fonteintje, de trap naar boven, de slaapkamer met aangrenzende badkamer én de woonkamer. De woonkamer is heerlijk licht dankzij de diverse ramen en heeft een gezellige sfeerhaard. Vanuit de woonkamer loop je door naar de moderne woonkeuken met hoekopstelling en een praktische apparatenkast met bergruimte. In de keuken vind je onder andere een inductiekookplaat, afzuigkap, combi-oven, koelkast, vaatwasser en een Quooker. Via de toegangsdeur stap je zo het terras op. Vanuit de keuken is ook de bijkeuken bereikbaar, met aansluitingen voor wasmachine en droger en een deur naar de achtertuin. Aan de achterkant van de woning ligt de ruime slaapkamer op de begane grond. Deze grenst direct aan de moderne badkamer met inloopdouche, wastafelmeubel en tweede toilet. Op de gehele begane grond zijn de wanden glad gestuukt (afgewerkt met scanbehang) en ook de plafonds zijn strak afgewerkt en deels voorzien van inbouwspots.

Eerste verdieping

Middels een vaste trap komt je boven op de vide, met toegang tot twee extra (slaap)kamers. Zowel de overloop als de grootste kamer hebben een Velux-dakraam en er is veel handige bergruimte gecreëerd. Ook is er een aparte kast met de warmtepompinstallatie. Dankzij de ramen in de voor- en achtergevel is er op deze verdieping veel natuurlijk licht. Net als beneden is de vloer hier afgewerkt met houtlook plavuizen, inclusief vloerverwarming én vloerkoeling en de muren zijn glad gestuukt en afgewerkt met scanbehang.

Bijzonderheden

De prachtig aangelegde tuin rondom de woning biedt volop privacy en rust. Of je nu houdt van tuinieren, relaxen in de zon of gezellige avonden in de veranda – hier kan het allemaal. Met groene borders, een (kunst)gazon, een veranda en verschillende zithoeken is er altijd wel een fijne plek te vinden om van het buitenleven te genieten. Er is een aangebouwde berging voor extra opslag én je kunt minimaal twee auto's kwijt op eigen terrein. Ook in de buurt is voldoende parkeer- en speelruimte aanwezig.

Kaart

Kenmerken

Overdracht

Vraagprijs
€ 995.000,- k.k.
Inrichting
Niet gestoffeerd
Inrichting
Niet gemeubileerd
Status
Verkocht
Aanvaarding
In overleg
Laatste wijziging
Dinsdag 30 september 2025

Bouw

Type object
Woonhuis, bungalow, vrijstaande woning
Soort bouw
Bestaande bouw
Toegankelijkheid
Mindervaliden
Senioren
Bouwperiode
2017
Dakbedekking
Dakpannen
Type dak
Zadeldak
Keurmerken
Energie prestatie advies
Isolatievormen
Volledig geïsoleerd

Oppervlaktes en inhoud

Perceeloppervlakte
348 m²
Woonoppervlakte
125 m²
Inhoud
530 m³
Oppervlakte overige inpandige ruimten
14 m²
Oppervlakte gebouwgebonden buitenruimte
16 m²

Indeling

Aantal bouwlagen
2
Aantal kamers
4 (waarvan 3 slaapkamers)
Aantal badkamers
1 (en 1 apart toilet)

Locatie

Ligging
Aan bosrand
Aan rustige weg
In bosrijke omgeving
In woonwijk

Tuin

Type
Tuin rondom
Hoofdtuin
Ja
Staat
Prachtig aangelegd

Energieverbruik

Energielabel
A+++

Uitrusting

Aantal parkeerplaatsen
2
Verwarmingssysteem
Vloerverwarming
Warmtepomp
Ventilatie methode
Mechanische ventilatie
Badkamervoorzieningen
Inloopdouche
Toilet
Vloerverwarming
Wastafel
Wastafelmeubel
Glasvezelaansluiting aanwezig
Ja
Tuin aanwezig
Ja
Heeft schuur/berging
Ja
Heeft een dakraam
Ja
Heeft zonnepanelen
Ja
Heeft ventilatie
Ja

Kadastrale gegevens

Kadastrale aanduiding
Ede C 4394
Perceeloppervlakte
348 m²
Omvang
Geheel perceel
Eigendomsituatie
Eigen grond

Media

Video

Virtuele tour

Plattegronden

Brochure(s) en overige bijlagen

Regiment 13, 6711 VR EDE (1) Download