Verkocht:Julianastraat 22, 6732 AV Harskamp - Foto
Verkocht
+53

Julianastraat 22 6732 AV Harskamp

  • Woonhuis
  • 8 kamers
  • 7 slaapkamers
  • 1 badkamers
  • Bouwjaar 1935
  • 770 m² perceeloppervlakte
  • 221 m² gebruiksoppervlakte
  • D Energielabel D
Deze woning heeft een unieke website: www.julianastraat22.nl

Beschrijving

Deze karakteristieke vrijstaande woning met royale tuin aan Julianastraat 22 staat nu te koop. De gemoderniseerde woning van oorspronkelijk bouwjaar 1935 is gelegen op een perceel van maar liefst 770 m2 en beschikt over 221 m2 woonoppervlak. Dit object biedt veel mogelijkheden, denk daarbij ook aan werkruimte aan huis, mantelzorg, bed en breakfast op het perceel etc. Op de begane grond zijn 2 slaapkamers aanwezig; het is dus zeker mogelijk om ook een levensloopbestendige woning te creëren. Overige aandachtspunten die wij verder graag benoemen zijn o.a. de sfeervolle woonkamer met erker en haard, moderne keuken en badkamer, comfortabele vloerwarming, aanwezigheid van 16 zonnepanelen en de keurige afwerking; een prachtige combinatie van authentieke details met alle hedendaagse luxe voorzieningen! In de verzorgde tuin kun je genieten van het buitenleven en over parkeren geen zorgen; er is voldoende ruimte op de eigen oprit. Bovendien is de ligging van de woning zeer gunstig te noemen: centraal gelegen op de Veluwe en met een goede ontsluiting naar de snelwegen. Wordt deze woning jouw nieuwe (t)huis? Neem dan contact met ons op voor een bezichtigingsafspraak. Je bent van harte welkom!

Deze woning heeft een eigen website met o.a. fullscreen foto's. Kijk op julianastraat22.nl voor alle informatie.

Indeling

Bij binnenkomst via de entree kom je in de hal, die toegang biedt tot de toiletruimte met wandcloset en fonteintje, de meterkast (met glasvezelaansluiting), trapopgang naar de eerste verdieping en de woonkamer. De woonkamer is een sfeervolle ruimte met mogelijkheden voor meerdere zithoeken. Er is een gezellige kachel, een erker, mooie glas-in-lood raampartijen en de woonkamer biedt directe toegang tot de tuin. Via de woonkamer kom je in de keuken. De keuken met twee rechte opstelling is uitgerust met een 4-pits kookplaat, afzuigkap, oven, koel-/vriescombinatie en een vaatwasser. In de woonkamer en keuken zijn de wanden en het plafond glad afgewerkt en voorzien van inbouwspots. Vanuit de keuken is de provisiekelder bereikbaar. Vervolgens bereik je via een portaal de bijkeuken. Hier is een vaste kast te vinden met daarin de c.v.-installatie (Remeha 2013) en de aansluitingen voor een wasmachine en droger. Aan de achterzijde van de woning zijn nog 2 slaapkamers, een berging en een toiletruimte. Dit gedeelte betreft een voormalige praktijkruimte welke nu vele opties voor gebruik bieden.

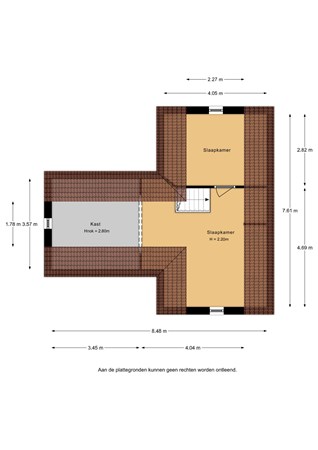
Eerste verdieping

Via de vaste trap bereik je de overloop van de eerste verdieping. Deze overloop biedt toegang tot vier slaapkamers, een inloopkast en de badkamer. De moderne badkamer (2018) is deels betegeld en beschikt over een wastafelmeubel, inloopdouche en een wandcloset. Daarnaast zijn er 2 Velux-dakramen aanwezig en is er vloerverwarming aanwezig. De gehele verdieping is keurig afgewerkt en voorzien van vloerbedekking.

Tweede verdieping

Via een vaste trap is de tweede verdieping bereikbaar. Een mooie hoge ruimte met houten balken en de nok in zicht. Hier is een slaapkamer gerealiseerd en daarnaast is er voldoende bergruimte beschikbaar. Deze ruimte is eventueel nog vrij in te delen met (een) extra kamer(s).

Bijzonderheden

De tuin is fraai aangelegd en voorzien van een groot bestraat terras, groene borders en een ruim gazon. Er is een oprit met carport en een garage aanwezig. De achterzijde van de woning beschikt tevens over een vliering en biedt hierdoor voldoende opbergmogelijkheden. Tot slot is er voldoende parkeergelegenheid op eigen terrein en onder de carport.

Mogelijkheden voor deze woning:
- Levensloopbestendig wonen;
- Praktijk aan huis;
- Mantelzorg;

Kaart

Kenmerken

Overdracht

Vraagprijs
€ 995.000,- k.k.
Status
Verkocht
Aanvaarding
In overleg
Laatste wijziging
Zaterdag 8 februari 2025

Bouw

Type object
Woonhuis, eengezinswoning, vrijstaande woning
Soort bouw
Bestaande bouw
Toegankelijkheid
Senioren
Bouwperiode
1935
Dakbedekking
Dakpannen
Type dak
Samengesteld
Keurmerken
Energie prestatie advies
Isolatievormen
Dakisolatie
Grotendeels dubbel glas
Vloerisolatie

Oppervlaktes en inhoud

Perceeloppervlakte
770 m²
Woonoppervlakte
221 m²
Inhoud
850 m³
Oppervlakte overige inpandige ruimten
38 m²
Oppervlakte gebouwgebonden buitenruimte
36 m²

Indeling

Aantal bouwlagen
3 (en 1 kelder)
Aantal kamers
8 (waarvan 7 slaapkamers)
Aantal badkamers
1 (en 1 apart toilet)

Locatie

Ligging
Aan rustige weg
In woonwijk

Tuin

Type
Tuin rondom
Hoofdtuin
Ja
Staat
Prachtig aangelegd

Energieverbruik

Energielabel
D

CV ketel

CV ketel
Remeha
Warmtebron
Gas
Bouwjaar
2013
Combiketel
Ja
Eigendom
Eigendom

Uitrusting

Aantal parkeerplaatsen
5
Aantal overdekte parkeerplaatsen
1
Warm water
CV-ketel
Verwarmingssysteem
Centrale verwarming
Gashaard
Vloerverwarming (gedeeltelijk)
Ventilatie methode
Mechanische ventilatie
Keukenvoorzieningen
Inbouwapparatuur
Badkamervoorzieningen
Inloopdouche
Toilet
Vloerverwarming
Wastafel
Wastafelmeubel
Parkeergelegenheid
Aangebouwde stenen garage
Glasvezelaansluiting aanwezig
Ja
Tuin aanwezig
Ja
Heeft een garage
Ja
Heeft een dakraam
Ja
Heeft zonnepanelen
Ja
Heeft ventilatie
Ja

Kadastrale gegevens

Kadastrale aanduiding
Otterlo G 1651
Perceeloppervlakte
770 m²
Omvang
Geheel perceel
Eigendomsituatie
Eigen grond

Media

Video

Virtuele tour

Plattegronden

Brochure(s) en overige bijlagen

Julianastraat 22, 6732 AV HARSKAMP (1) Download