Ben jij op zoek naar een plek waar wonen en werken perfect samengaan? Dan is deze vrijstaande woning met royaal bijgebouw aan de Lunterseweg 62 in Ede absoluut een buitenkans. Met een charmante uitstraling (bouwjaar 1928), volledig gerenoveerd (in 2008 en 2014) én een energielabel A dankzij maar liefst 16 zonnepanelen, biedt dit huis veel comfort en duurzaamheid. De woning beschikt over een woonoppervlak van 128 m² en is gesitueerd op een royaal perceel van 1.285 m². Binnen vind je onder andere een ruime woonkeuken met direct toegang tot de sfeervolle overkapping aan huis. De uitbouw is geschikt voor opbouw, de tekening hiervoor is reeds aanwezig. Daarnaast zijn er twee badkamers (waarvan één op de begane grond), een praktisch slaap/werkkamer op de begane grond en een royale, volledig geïsoleerde garage met zolderverdieping. Deze garage biedt volop mogelijkheden als werkplaats, opslag of extra parkeerruimte – een groot pluspunt. De vrije ligging zorgt voor ruimte rondom de woning, terwijl de uitvalswegen en de dorpen Lunteren en Ede toch vlakbij zijn. Kortom: een ideale locatie. Ben je nieuwsgierig of dit jouw nieuwe thuis kan worden? Neem gerust vrijblijvend contact met ons op. Je bent van harte welkom om dit unieke object zelf te komen bekijken.
Deze woning heeft een eigen website met o.a. fullscreen foto's. Kijk op lunterseweg62.nl voor alle informatie.
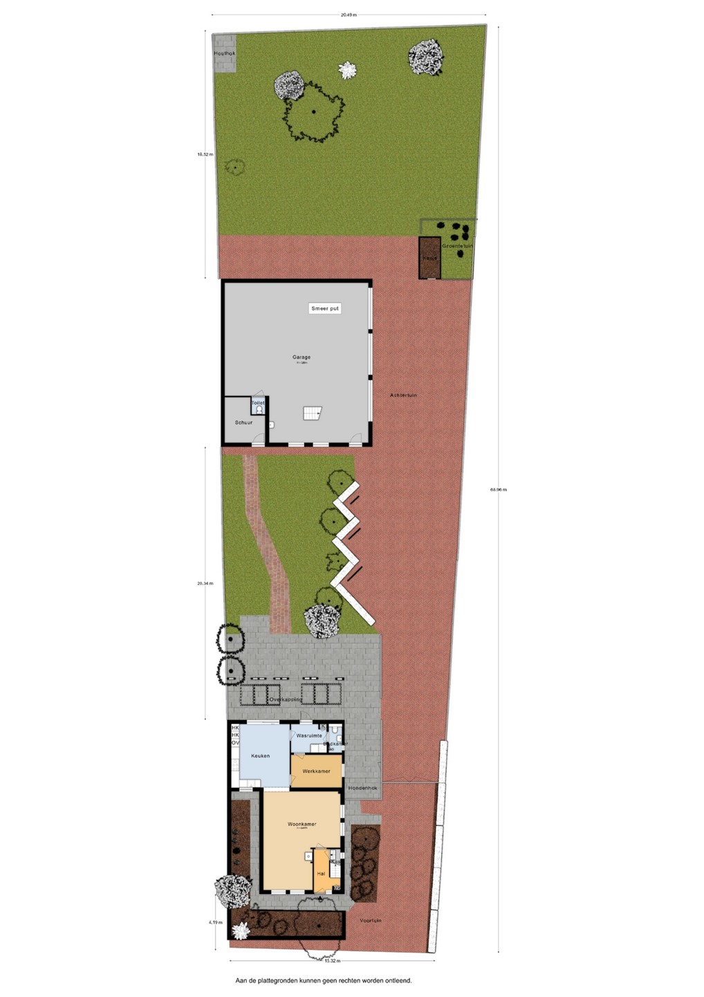
Indeling
Je komt binnen in de hal die toegang geeft tot de meterkast, trapopgang naar de 1e verdieping, een praktische kelderkast en de woonkamer. De woonkamer voelt ruim en licht aan, met plek voor meerdere zithoeken. De sfeervolle houtkachel en inbouwspots zorgen voor een warme en gezellige uitstraling. Aan de achterzijde van de woning ligt de woonkeuken (2015). Deze keuken met hoekopstelling is compleet uitgerust met diverse inbouwapparatuur, waaronder een 5-pits gasfornuis, koelkast, vriezer, vaatwasser, combi-oven en een praktische apothekerskast. Via de schuifpui heb je direct toegang tot het overdekte terras, waardoor binnen en buiten op een natuurlijke manier met elkaar verbonden zijn. Vanuit de keuken bereik je de achter entree, die tevens dienstdoet als bijkeuken met de aansluitingen voor de wasmachine en droger, slim op hoogte geplaatst. Ook zijn vanuit hier de slaap-/werkkamer en de badkamer met toilet en douche te bereiken.
Eerste verdieping
Op de eerste verdieping vind je drie slaapkamers en een nette badkamer. De badkamer aan de voorzijde is volledig betegeld en uitgerust met een inloopdouche, toilet en wastafel. De naastgelegen slaapkamer beschikt over een royale inbouwkastenwand en elektrische Velux-dakramen. Aan de achterzijde bevinden zich nog twee slaapkamers: één met elektrisch Velux-dakraam en één met airconditioning, inbouwkast én een ingebouwd bed. Op de overloop is bovendien de cv-installatie (Nefit, 2011) netjes weggewerkt in een aparte kast.
Bijzonderheden
De maar liefst 60 meter diepe achtertuin biedt ongekend veel mogelijkheden. De lange oprit is ideaal voor het parkeren van meerdere auto’s op eigen terrein, naast de royale garage van ca. 120 m². Deze garage is praktisch ingedeeld met ruimte voor auto’s, een fietsenberging, toiletruimte en extra bergruimte. Via een vaste trap is de zolder bereikbaar, die perfect dienst kan doen als grote opslag. Ook de tuin zelf is royaal en veelzijdig. Hier kun je heerlijk genieten van het buitenleven: ontspannen in de zon, onder de sfeervolle veranda of juist actief bezig zijn in een eigen moestuin met verse groenten en fruit. Tot slot is de uitbouw is geschikt voor opbouw, de tekening hiervoor is reeds aanwezig. Word jij enthousiast van de ruimte en mogelijkheden die deze woning biedt? Neem dan gerust contact met ons op voor een bezichtiging!
Kaart
Kenmerken
Overdracht
Vraagprijs
€ 995.000,- k.k.
Inrichting
Niet gestoffeerd
Inrichting
Niet gemeubileerd
Aanvaarding
In overleg
Laatste wijziging
Maandag 13 oktober 2025
Bouw
Type object
Woonhuis, eengezinswoning, vrijstaande woning
Soort bouw
Bestaande bouw
Bouwperiode
1928
Dakbedekking
Dakpannen
Type dak
Mansardedak
Keurmerken
Energie prestatie advies
Isolatievormen
Volledig geïsoleerd
Oppervlaktes en inhoud
Perceeloppervlakte
1.285 m²
Woonoppervlakte
124 m²
Inhoud
420 m³
Oppervlakte externe bergruimte
161 m²
Oppervlakte gebouwgebonden buitenruimte
27 m²
Indeling
Aantal bouwlagen
2
Aantal kamers
5 (waarvan 3 slaapkamers)
Aantal badkamers
2
Locatie
Ligging
Buiten bebouwde kom Vrij uitzicht
Tuin
Type
Tuin rondom
Hoofdtuin
Ja
Oriëntering
Oosten
Staat
Prachtig aangelegd
Energieverbruik
Energielabel
A
CV ketel
CV ketel
Nefit
Warmtebron
Gas
Bouwjaar
2011
Combiketel
Ja
Eigendom
Eigendom
Uitrusting
Aantal parkeerplaatsen
10
Aantal overdekte parkeerplaatsen
3
Warm water
CV-ketel
Verwarmingssysteem
Centrale verwarming Houtkachel Vloerverwarming (gedeeltelijk)
Als u onze brochures wilt bekijken, willen we graag weten wie u bent. Log alstublieft in met uw bestaande account of vul uw contactgegevens in. Bedankt!