Verkocht onder voorbehoud:Trompstraat 32, 6712 DN Ede - Foto
Verkocht onder voorbehoud
+43

Trompstraat 32 6712 DN Ede € 800.000,- k.k.

  • Woonhuis
  • 6 kamers
  • 5 slaapkamers
  • 1 badkamers
  • Bouwjaar 2003
  • 310 m² perceeloppervlakte
  • 194 m² gebruiksoppervlakte
  • A Energielabel A

Beschrijving

OPEN HUIS - Zaterdag 22 november as. van 11.00 - 14.00 uur Je bent van harte welkom!

Op een zeer geliefde woonlocatie in Ede ligt deze royale 2-onder-1-kapwoning met fijne achtertuin aan Trompstraat 32. Deze ruime gezinswoning uit 2003 is gelegen op een perceel van 310 m² en biedt maar liefst 194 m² woonoppervlak. Zo is er genoeg ruimte voor het hele gezin. De woning is volledig geïsoleerd en beschikt over energielabel A en deels vloerverwarming, waardoor je hier comfortabel en energiezuinig kunt wonen. De sfeervolle en royale woonkamer met gashaard vormt het hart van het huis. Daarnaast biedt de woning vier volwaardige slaapkamers en een keurige badkamer. De ligging is een groot pluspunt: het centrum van Ede is op loopafstand, evenals scholen, supermarkten en het bos. Ben je nieuwsgierig geworden naar deze prachtige woning? Maak snel een bezichtigingsafspraak en ontdek zelf wat deze woning zo bijzonder maakt. Je bent van harte welkom!

Indeling

Via de overdekte entree kom je binnen in de ruime hal. Vanuit hier heb je toegang tot de trapopgang naar de 1e verdieping, geheel betegelde toiletruimte met wandcloset en fontein, meterkast met glasvezelaansluiting, inpandige berging en de woonkamer. De royale en tuingerichte woonkamer is het hart van de woning. Dankzij de prettige indeling is er volop ruimte voor zowel een comfortabele zithoek als een royale eethoek. De sfeervolle gashaard zorgt daarbij voor extra sfeer. Via de openslaande deuren stap je bovendien zo de achtertuin in, waardoor binnen en buiten in elkaar overlopen. Aan de voorzijde van de woning bevindt zich de keuken in hoekopstelling. Deze is voorzien van vloerverwarming en uitgerust met diverse inbouwapparatuur, waaronder een inductiekookplaat, afzuigkap, vaatwasser, combi-oven/magnetron, koelkast en een Quooker (2024). De begane grond is verder afgewerkt met een fraaie houten vloer en beschikt over een praktische provisiekast.

Eerste verdieping

Via de vaste trap kom je op de overloop van de eerste verdieping. Vanaf de overloop heb je toegang tot drie ruime slaapkamers, de badkamer en een bergruimte. De slaapkamer aan de voorzijde beschikt over een vaste kast. Aan de achterzijde liggen nog twee slaapkamers, waarvan één is voorzien van een praktische kastenwand. De badkamer is compleet uitgerust met vloerverwarming, een dubbele wastafel, toilet, douchecabine, hoekbad en designradiatoren.

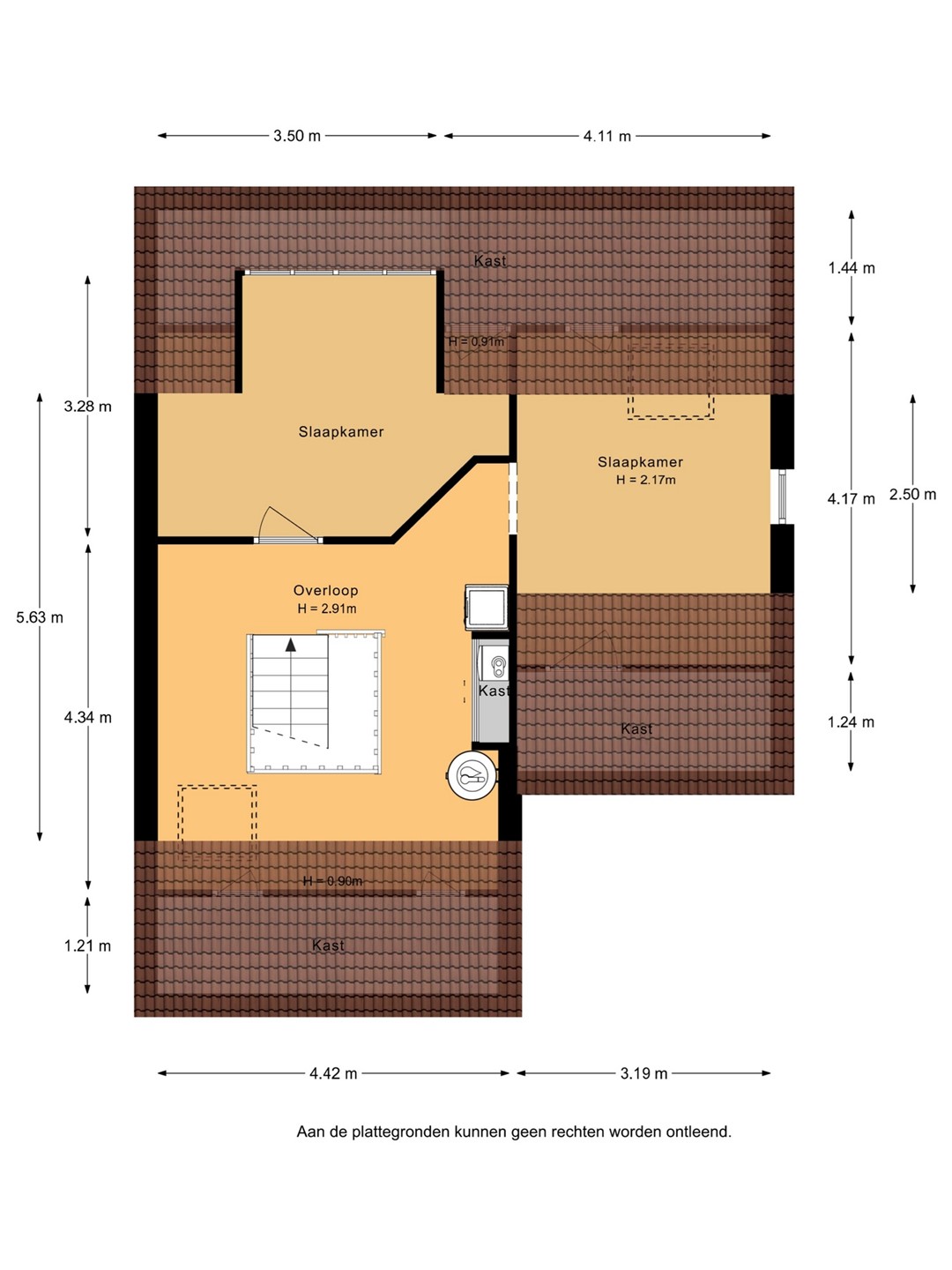
Tweede verdieping

Via de vaste trap kom je op de overloop van de tweede verdieping. Hier vind je de aansluitingen voor de wasmachine en droger, evenals de cv-installatie (Nefit, 2011) en de boiler. Vanuit de overloop heb je toegang tot een slaapkamer met dakkapel en een tweede kamer die zich uitstekend leent als extra slaapkamer of als kantoorruimte. Zowel op de overloop als in de slaapkamers is er bovendien veel praktische bergruimte achter de knieschotten.

Bijzonderheden

De achtertuin is vanuit de woonkamer via openslaande deuren bereikbaar en is verzorgd aangelegd met sierbestrating, een ruim terras en groene borders. Door de praktische indeling is er volop ruimte voor een comfortabele loungeset of een gezellige eethoek, zodat je optimaal van het buitenleven kunt genieten. De tuin loopt rondom de woning, waardoor ook de inpandige berging eenvoudig van buitenaf toegankelijk is. Parkeren kan gemakkelijk op de oprit op eigen terrein, wat extra gemak biedt. Voor kinderen is er bovendien een speelveldje in de directe nabijheid, ideaal om veilig en dichtbij te spelen.

Kaart

Kenmerken

Overdracht

Vraagprijs
€ 800.000,- k.k.
Status
Verkocht onder voorbehoud
Aanvaarding
In overleg
Laatste wijziging
Vrijdag 5 december 2025

Bouw

Type object
Woonhuis, eengezinswoning, twee onder een kap woning
Soort bouw
Bestaande bouw
Bouwperiode
2003
Dakbedekking
Dakpannen
Type dak
Samengesteld
Keurmerken
Energie prestatie advies
Isolatievormen
Dakisolatie
Dubbel glas
HR-glas
Muurisolatie
Spouwmuren
Vloerisolatie
Volledig geïsoleerd

Oppervlaktes en inhoud

Perceeloppervlakte
310 m²
Woonoppervlakte
194 m²
Inhoud
721 m³
Oppervlakte gebouwgebonden buitenruimte
5,2 m²

Indeling

Aantal bouwlagen
3
Aantal kamers
6 (waarvan 5 slaapkamers)
Aantal badkamers
1 (en 1 apart toilet)

Locatie

Ligging
Aan rustige weg
In bosrijke omgeving
In woonwijk

Tuin

Type
Voortuin
Oriëntering
Zuiden
Staat
Prachtig aangelegd
Tuin 2 - Type
Achtertuin
Tuin 2 - Hoofdtuin
Ja
Tuin 2 - Heeft een achterom
Ja
Tuin 2 - Staat
Prachtig aangelegd

Energieverbruik

Energielabel
A

CV ketel

CV ketel
Nefit Topline HR
Warmtebron
Gas
Bouwjaar
2011
Combiketel
Ja
Eigendom
Eigendom

Uitrusting

Aantal parkeerplaatsen
3
Warm water
CV-ketel
Elektrische boiler
Zonneboiler
Zonnecollectoren
Verwarmingssysteem
Centrale verwarming
Gashaard
Vloerverwarming (gedeeltelijk)
Zonnecollectoren
Ventilatie methode
Mechanische ventilatie
Keukenvoorzieningen
Inbouwapparatuur
Badkamervoorzieningen
Douche
Dubbele wastafel
Ligbad
Toilet
Vloerverwarming
Wastafel
Parkeergelegenheid
Inpandige garage
Heeft kabel-tv
Ja
Glasvezelaansluiting aanwezig
Ja
Tuin aanwezig
Ja
Heeft een garage
Ja
Heeft schuur/berging
Ja
Heeft een dakraam
Ja
Heeft zonnepanelen
Ja
Heeft zonnecollectoren
Ja
Heeft ventilatie
Ja

Kadastrale gegevens

Kadastrale aanduiding
Ede K 16757
Perceeloppervlakte
310 m²
Omvang
Geheel perceel
Eigendomsituatie
Eigen grond

Media

Video

Virtuele tour

Plattegronden

Brochure(s) en overige bijlagen

Trompstraat 32, 6712 DN EDE (1) Download