Verkocht:Kraatswegje 5, 6732 AK Harskamp - Foto
Verkocht
+60

Kraatswegje 5 6732 AK Harskamp

  • Woonhuis
  • 8 kamers
  • 5 slaapkamers
  • 1 badkamers
  • Bouwjaar 1996
  • 645 m² perceeloppervlakte
  • 280 m² gebruiksoppervlakte
  • A Energielabel A

Beschrijving

Aan de rand van het dorp Harskamp staat deze prachtig afgewerkte en ruime vrijstaande woning te koop! Deze ideale gezinswoning, gebouwd in 1996, is in 2020 op meerdere punten gemoderniseerd. De woning heeft energielabel A en 36 zonnepanelen, een woonoppervlak van maar liefst 280 m² en gesitueerd op een perceel van 645 m². Enkele aandachtspunten die wij graag benoemen zijn de royale kelder, de flexibele werkkamer - die naar eigen wens kan worden ingedeeld - met een verdieping, de diepe achtertuin op het zuiden met moestuin en de praktische berging voor de fietsen. Op de dubbele oprit is voldoende ruimte voor het parkeren van uw auto(‘s). Vanwege de gunstige ligging nabij het dorpshart zijn alle voorzieningen op loopafstand bereikbaar. Ook Het Nationale Park De Hoge Veluwe met de prachtige natuur is om de hoek te vinden. Hebben wij je nieuwsgierig gemaakt naar deze woning? Maak geheel vrijblijvend een afspraak voor een bezichtiging. Wij heten je van harte welkom!

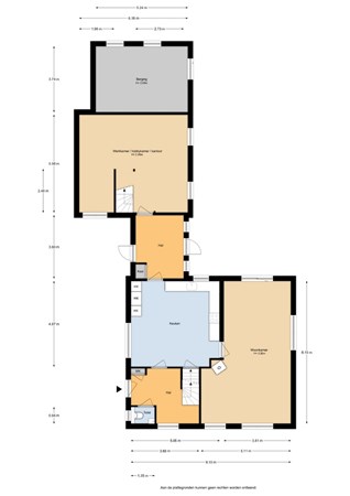
Indeling

Via de entree bereik je de hal, die toegang biedt tot de meterkast (met glasvezelaansluiting), een toiletruimte met wandcloset en fontein, de trap naar de eerste verdieping, de keuken. De moderne woonkeuken, vernieuwd in 2020, heeft een hoekopstelling en een apparatenkast. De keuken is uitgerust met een inductiekookplaat, afzuigkap, vaatwasser, oven en koelkast en biedt voldoende ruimte voor een royale eethoek. Vervolgens is de woonkamer bereikbaar. De woonkamer bevindt zich aan de rechterzijde van de woning en is een sfeervolle ruimte met de mogelijkheid voor meerdere zithoeken. Via een schuifpui heb je direct toegang tot het terras in de achtertuin. Tot slot is de gehele begane grond (m.u.v. de werkkamer) voorzien van vloerverwarming.

De kelder, bereikbaar vanuit de keuken, is een ruime plek met een aparte kamer en meerdere ramen die voor natuurlijk daglicht zorgen. Vanuit de bijkeuken heb je toegang tot de oprit, achtertuin en een werkkamer, die naar eigen wens kan worden ingedeeld en veel mogelijkheden biedt. De vaste trap in de werkkamer leidt naar een verdieping met twee slaapkamers.

Eerste verdieping

Via de vaste trap bereik je de overloop van de eerste verdieping, die toegang biedt tot drie slaapkamers, de badkamer en een wasruimte. In de wasruimte bevinden zich de aansluitingen voor de wasmachine en droger, evenals de cv-installatie (Remeha 2018). Alle drie de slaapkamers zijn netjes afgewerkt en voorzien van Velux dakramen. De ouderslaapkamer aan de voorzijde van de woning beschikt bovendien over een luxe inloopkast met schuifdeur. De badkamer, die in 2020 is vernieuwd en voorzien van vloerverwarming, is uitgerust met een inloopdouche, een dubbel wastafelmeubel en een wandcloset.

2e verdieping: tot slot is de vliering bereikbaar via een vlizotrap. Een handige plek om je spullen op te bergen.

Bijzonderheden

In de op het zuiden georiënteerde tuin rondom de woning is o.a. een bestraat terras, gazon, groene borders en een moestuin aanwezig. Een heel fijne groene tuin waar je heerlijk van het buitenleven kunt genieten. Tevens is de achtergevel voorzien van een zonnescherm; zo is het ook mogelijk om in de schaduw te zitten. Voor het bergen van de fietsen of tuingereedschap is er een aangebouwde berging aanwezig. Tot slot is er op de (dubbele) oprit voldoende gelegenheid om je auto(‘s) op eigen terrein te parkeren.

Kaart

Kenmerken

Overdracht

Vraagprijs
€ 869.000,- k.k.
Status
Verkocht
Aanvaarding
In overleg
Laatste wijziging
Donderdag 26 juni 2025

Bouw

Type object
Woonhuis, eengezinswoning, geschakelde woning
Soort bouw
Bestaande bouw
Toegankelijkheid
Senioren
Bouwperiode
1996
Dakbedekking
Dakpannen
Type dak
Zadeldak
Keurmerken
Energie prestatie advies
Isolatievormen
Dakisolatie
HR-glas
Muurisolatie
Vloerisolatie
Volledig geïsoleerd

Oppervlaktes en inhoud

Perceeloppervlakte
645 m²
Woonoppervlakte
280 m²
Inhoud
1.119 m³
Oppervlakte overige inpandige ruimten
43,4 m²

Indeling

Aantal bouwlagen
4 (en 1 kelder)
Aantal kamers
8 (waarvan 5 slaapkamers)
Aantal badkamers
1 (en 1 apart toilet)

Locatie

Ligging
In woonwijk

Tuin

Type
Tuin rondom
Hoofdtuin
Ja
Oriëntering
Zuiden
Staat
Prachtig aangelegd

Energieverbruik

Energielabel
A

CV ketel

CV ketel
Remeha
Warmtebron
Gas
Bouwjaar
2018
Combiketel
Ja
Eigendom
Eigendom

Uitrusting

Aantal parkeerplaatsen
5
Warm water
CV-ketel
Verwarmingssysteem
Centrale verwarming
Houtkachel
Vloerverwarming (gedeeltelijk)
Ventilatie methode
Natuurlijke ventilatie
Keukenvoorzieningen
Inbouwapparatuur
Badkamervoorzieningen
Dubbele wastafel
Inloopdouche
Toilet
Vloerverwarming
Wastafelmeubel
Heeft een rookkanaal
Ja
Glasvezelaansluiting aanwezig
Ja
Tuin aanwezig
Ja
Heeft schuur/berging
Ja
Heeft een dakraam
Ja
Heeft een schuifpui
Ja
Heeft zonwering
Ja
Heeft zonnepanelen
Ja

Kadastrale gegevens

Kadastrale aanduiding
Otterlo G 2550
Perceeloppervlakte
645 m²
Omvang
Geheel perceel
Eigendomsituatie
Eigen grond

Media

Video

Virtuele tour

Plattegronden

Brochure(s) en overige bijlagen

Brochure - Kraatswegje 5 - Harskamp.pdf Download