Verkocht:Herfsttuin 29, 3772 VJ Barneveld - Foto
Verkocht
+37

Herfsttuin 29 3772 VJ Barneveld

  • Woonhuis
  • 5 kamers
  • 4 slaapkamers
  • 1 badkamers
  • Bouwjaar 2000
  • 157 m² perceeloppervlakte
  • 107 m² gebruiksoppervlakte
  • A Energielabel A

Beschrijving

In de kindvriendelijke woonwijk ‘De Burgt’ staat nu deze uitgebouwde gezinswoning te koop! Deze tussenwoning van bouwjaar 2000 is keurig afgewerkt, beschikt over 107 m2 woonoppervlak en is gesitueerd op een perceel van 157 m2. Daarnaast is de woning volledig geïsoleerd (energielabel A) en voorzien van comfortabele vloerverwarming op de begane grond. Overige aandachtspunten die wij graag benoemen zijn o.a. de royale woonkamer, sfeervolle en moderne keuken, 4 slaapkamers en de fijne veranda (2023) in de achtertuin! De ligging van de woning is ook zeer gunstig te noemen, met voorzieningen waaronder scholen, gezondheidscentrum en speelgelegenheden op loopafstand. Tevens is het centrum van Barneveld, met supermarkten en andere winkelgelegenheden ook op korte afstand te bereiken. Hebben wij je nieuwsgierig gemaakt naar deze leuke woning? Neem dan contact met ons op voor een bezichtigingsafspraak. Je bent van harte welkom!

Indeling

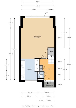
Via de entree bereik je de hal die toegang biedt tot de toiletruimte met wandcloset en fontein, meterkast (met glasvezelaansluiting), trapopgang naar de 1e verdieping en de woonkamer. De tuingerichte woonkamer is aan de achterzijde van de woning gesitueerd en voorzien van een grote raampartij, waardoor er veel natuurlijk daglicht is. Daarnaast is er een loopdeur aanwezig die directe toegang biedt tot de achtertuin. De keuken aan de voorzijde met rechte opstelling en apparatenkast is uitgerust met een inductiekookplaat, afzuigkap, oven, koelkast en een afwasmachine. Tot slot is de begane grond afgewerkt met gestuukte wanden en plafond met inbouwspots en een mooie visgraat pvc-vloer met comfortabele vloerverwarming.

Eerste verdieping

Via de vaste trap is de overloop van de 1e verdieping bereikbaar die toegang biedt tot 2 slaapkamers, de badkamer en trapopgang naar de 2e verdieping. De royale ouderslaapkamer (voorheen 2 kamers) beschikt over een fijne kastenwand. De geheel betegelde badkamer is voorzien van een ligbad met douche, wastafel en toilet.

Tweede verdieping

Via de vaste trap is de overloop van de 2e verdieping bereikbaar. Op deze verdieping zijn nog 2 slaapkamers te vinden. Beide slaapkamers zijn voorzien van een Velux-dakraam en vaste kastruimte. Ook op de overloop is kastruimte gecreëerd en naast de c.v.-installatie (Vaillant 2015) vind je hier ook de aansluitingen voor een wasmachine en/of droger.

Bijzonderheden

In de verzorgde tuin is een stenen berging (ruim 8 m2) aanwezig en via een poort aan de achterzijde is de tuin achterom te bereiken. Onder de veranda is het heerlijk vertoeven met vrienden en/of familie! Verder is deze tuin voorzien van diverse groene borders en een gazon. Er is parkeergelegenheid direct voor de woning en ook in de wijk zijn voldoende parkeer- en speelvoorzieningen te vinden.

Kaart

Kenmerken

Overdracht

Vraagprijs
€ 450.000,- k.k.
Status
Verkocht
Aanvaarding
In overleg
Laatste wijziging
Donderdag 26 december 2024

Bouw

Type object
Woonhuis, eengezinswoning, tussenwoning
Soort bouw
Bestaande bouw
Bouwperiode
2000
Dakbedekking
Dakpannen
Type dak
Zadeldak
Keurmerken
Energie prestatie advies
Isolatievormen
Dakisolatie
Dubbel glas
Muurisolatie
Vloerisolatie
Volledig geïsoleerd

Oppervlaktes en inhoud

Perceeloppervlakte
157 m²
Woonoppervlakte
107 m²
Inhoud
366 m³
Oppervlakte externe bergruimte
8,4 m²
Oppervlakte gebouwgebonden buitenruimte
1,31 m²

Indeling

Aantal bouwlagen
3
Aantal kamers
5 (waarvan 4 slaapkamers)
Aantal badkamers
1 (en 1 apart toilet)

Locatie

Ligging
Aan rustige weg
In woonwijk

Tuin

Type
Achtertuin
Hoofdtuin
Ja
Heeft een achterom
Ja
Staat
Prachtig aangelegd
Tuin 2 - Type
Achtertuin
Tuin 2 - Staat
Prachtig aangelegd

Energieverbruik

Energielabel
A

CV ketel

CV ketel
Vaillant
Warmtebron
Gas
Bouwjaar
2015
Combiketel
Ja
Eigendom
Eigendom

Uitrusting

Warm water
CV-ketel
Verwarmingssysteem
Centrale verwarming
Vloerverwarming (gedeeltelijk)
Ventilatie methode
Mechanische ventilatie
Keukenvoorzieningen
Inbouwapparatuur
Badkamervoorzieningen
Douche
Ligbad
Wastafel
Glasvezelaansluiting aanwezig
Ja
Tuin aanwezig
Ja
Heeft schuur/berging
Ja
Heeft een dakraam
Ja
Heeft ventilatie
Ja

Kadastrale gegevens

Kadastrale aanduiding
Barneveld E 3875
Perceeloppervlakte
157 m²
Omvang
Geheel perceel
Eigendomsituatie
Eigen grond

Media

Video

Virtuele tour

Plattegronden

Brochure(s) en overige bijlagen

Herfsttuin 29, 3772 VJ BARNEVELD (1) Download