Nieuw in verkoop:Jufferswijk 4, 6745 XG De Klomp - Foto
Nieuw in verkoop
+57

Jufferswijk 4 6745 XG De Klomp € 685.000,- k.k.

  • Woonhuis
  • 5 kamers
  • 4 slaapkamers
  • 1 badkamers
  • Bouwjaar 1990
  • 430 m² perceeloppervlakte
  • 116 m² gebruiksoppervlakte
  • A Energielabel A
Deze woning heeft een unieke website: www.jufferswijk4.nl

Beschrijving

Op een rustige locatie in de kleine kern De Klomp staat deze vrijstaande woning met garage te koop. De woning, gebouwd in 1990, voorzien van 14 zonnepanelen en met een woonoppervlak van 116 m², is comfortabel ingedeeld met onder meer een slaap- en badkamer op de begane grond. Daarnaast beschikt het huis over een moderne keuken en badkamer, vier slaapkamers en een royaal perceel van 430 m² met garage en tuinhuis. De ligging is eveneens gunstig: in een rustige omgeving en op loopafstand van intercitystation Veenendaal–De Klomp. Met de auto zijn de A12 en A30 snel te bereiken, en zowel het centrum van Veenendaal als de dorpskern van Ederveen liggen op korte fietsafstand. Ben je nieuwsgierig geworden naar deze woning? Neem dan contact met ons op voor een bezichtigingsafspraak. Je bent van harte welkom!

Deze woning heeft een eigen website met o.a. fullscreen foto's. Kijk op jufferswijk4.nl voor alle informatie.

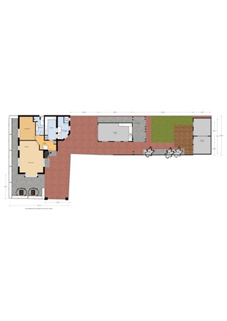
Indeling

Via de entree kom je in de hal, die toegang geeft tot de meterkast, keuken, badkamer, slaapkamer en woonkamer. De gezellige woonkamer beschikt over een leuke erker met inbouwspots, airconditioning en openslaande deuren naar de tuin. Er is voldoende ruimte voor een comfortabele zit- en eethoek. De moderne keuken in hoekopstelling is uitgerust met diverse inbouwapparaten, waaronder een inductiekookplaat, afzuigkap, twee combi-ovens, een koelkast, vriezer en vaatwasser. Daarnaast vind je hier een praktische vaste kast met extra bergruimte en toegang tot de bijkeuken. In de bijkeuken zitten de aansluitingen voor de wasmachine en droger en bevindt zich tevens de toiletruimte met wandcloset en fonteintje.

De naast de keuken gelegen slaapkamer en badkamer zorgen voor extra gemak op de begane grond. De moderne, volledig betegelde badkamer is ingericht met een inloopdouche, ligbad, dubbel wastafelmeubel, designradiatoren en een toilet. De ruime slaapkamer is voorzien van inbouwspots. De hele begane grond is afgewerkt met comfortabele vloerverwarming, een plavuizenvloer en strak gestucte wanden en plafonds.

Eerste verdieping

Via de vaste trap kom je op de ruime overloop van de eerste verdieping, waar airconditioning aanwezig is. Vanaf hier heb je toegang tot drie slaapkamers. Dankzij de schuine wanden zijn er op de overloop veel vaste kasten gemaakt, wat zorgt voor extra bergruimte en een strakke afwerking. Van de drie slaapkamers liggen er twee aan de voorzijde van de woning (voorheen één grote kamer). Eén van deze kamers heeft een vaste kast; de andere beschikt over een dakkapel en een eigen wastafel. De slaapkamer aan de achterzijde is eveneens voorzien van een dakkapel en een vaste kast.

Bijzonderheden

De fijne en diepe tuin ligt aan de zijkant van de woning en is voorzien van een praktische garage met keukenblok, vliering en stroomaansluiting, een overkapping, gazon, sierbestrating en een gezellig tuinhuis. Hier kun je zowel overdag als ’s avonds heerlijk overdekt zitten. Door de fijne indeling van de tuin is er volop ruimte om buiten te zitten of te spelen. Parkeren is ook geen probleem: dat kan eenvoudig op je eigen oprit.

Kaart

Kenmerken

Overdracht

Vraagprijs
€ 685.000,- k.k.
Status
Nieuw in verkoop
Aanvaarding
In overleg

Bouw

Type object
Woonhuis, bungalow, vrijstaande woning
Soort bouw
Bestaande bouw
Toegankelijkheid
Mindervaliden
Senioren
Bouwperiode
1990
Dakbedekking
Dakpannen
Type dak
Samengesteld
Keurmerken
Energie prestatie advies
Isolatievormen
Volledig geïsoleerd

Oppervlaktes en inhoud

Perceeloppervlakte
430 m²
Woonoppervlakte
116,4 m²
Inhoud
394 m³
Oppervlakte externe bergruimte
49 m²

Indeling

Aantal bouwlagen
2
Aantal kamers
5 (waarvan 4 slaapkamers)
Aantal badkamers
1 (en 1 apart toilet)

Locatie

Ligging
Aan rustige weg

Tuin

Type
Achtertuin
Hoofdtuin
Ja
Oriëntering
Oosten
Staat
Normaal
Tuin 2 - Type
Voortuin
Tuin 2 - Oriëntering
Zuiden
Tuin 2 - Staat
Normaal

Energieverbruik

Energielabel
A

CV ketel

CV ketel
Nefit
Warmtebron
Gas
Bouwjaar
2014
Combiketel
Ja
Eigendom
Eigendom

Uitrusting

Warm water
CV-ketel
Verwarmingssysteem
Airconditioning
Centrale verwarming
Gaskachels
Vloerverwarming (gedeeltelijk)
Ventilatie methode
Natuurlijke ventilatie
Badkamervoorzieningen
Inloopdouche
Ligbad
Toilet
Wastafel
Parkeergelegenheid
Vrijstaande stenen garage
Heeft airco
Ja
Heeft een rookkanaal
Ja
Glasvezelaansluiting aanwezig
Ja
Tuin aanwezig
Ja
Heeft een garage
Ja
Heeft zonnepanelen
Ja

Kadastrale gegevens

Kadastrale aanduiding
Ede L 1222
Perceeloppervlakte
430 m²
Omvang
Geheel perceel
Eigendomsituatie
Eigen grond

Media

Video

Virtuele tour

Plattegronden

Brochure(s) en overige bijlagen

Jufferswijk 4, 6745 XG DE KLOMP (1) Download