Verkocht:Beekhuizerzand 33, 6718 MD Ede - Foto
Verkocht
+33

Beekhuizerzand 33 6718 MD Ede

  • Woonhuis
  • 4 kamers
  • 3 slaapkamers
  • 1 badkamers
  • Bouwjaar 2011
  • 182 m² perceeloppervlakte
  • 119 m² gebruiksoppervlakte
  • A Energielabel A

Beschrijving

Ontdek deze fijne gezinswoning in de wijk Kernhem; welkom bij Beekhuizerzand 33 in Ede! Deze ideale hoekwoning van bouwjaar 2011 biedt alle comfort die je zoekt. Zo zijn er o.a. openslaande deuren van de woonkamer naar de tuin, een erker aan zowel de voor- als zijzijde, vloerverwarming (en koeling) in de hele woning en er zijn 13 zonnepanelen aanwezig. Daarnaast beschikt de woning over 3 royale slaapkamers, de nodige opbergruimte en in de ruim 12 meter diepe achtertuin is zowel een overkapping als een heerlijke veranda met glazen pui te vinden. Vanwege de gunstige ligging nabij winkelcentrum Parkweide zijn alle voorzieningen aanwezig voor de dagelijkse boodschappen. Ook zijn de snelwegen A30 en A12 op korte afstand gesitueerd en ben je binnen no-time in het bos of op het prachtige natuurgebied De Ginkelse Heide. Neem contact met ons op voor meer informatie of om een bezichtiging in te plannen. Wellicht is deze woning binnenkort jouw nieuwe (t)huis!

Indeling

Via de entree bereik je de hal die toegang geeft tot de toiletruimte met wandcloset en fontein, meterkast (glasvezel aanwezig) en de woonkamer. De royale, sfeervolle woonkamer is aan de achterzijde van de woning gesitueerd en beschikt over openslaande tuindeuren en een provisiekast met extra opbergruimte onder de trap. De woonkeuken met hoekopstelling bevindt zich aan de voorzijde van de woning en beschikt over een inductiekookplaat, afzuigkap, koelkast, oven en een vaatwasser. Door de aanwezigheid van een erker aan zowel de voor- als zijzijde is er een mooie lichtinval aanwezig en is er voldoende ruimte om een eettafel te plaatsen. Op de gehele begane grond is comfortabele vloerverwarming (en koeling) aanwezig.

Eerste verdieping

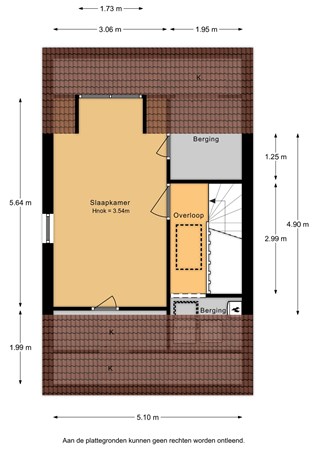
Via de overloop bereik je 2 royale slaapkamers, een inloopkast en de badkamer. De betegelde badkamer is aan de voorzijde van de woning gesitueerd en beschikt over een douche, wastafel en toilet. Naast de badkamer bevindt zich een slaapkamer en de ouderslaapkamer is aan de achterzijde van de woning te vinden. Ook is vanaf de overloop een ruime inloopkast te bereiken. Op deze verdieping is een keurige laminaatvloer aanwezig.

Tweede verdieping

Via een vaste trap is de 2e verdieping te bereiken. Vanaf de overloop is de berging met Velux-dakraam bereikbaar; hier bevinden zich de wasmachine-/drogeraansluitingen. Daarnaast is er een ruime slaapkamer op deze verdieping gesitueerd. De slaapkamer beschikt over een dakkapel en biedt toegang tot diverse bergruimte. Tot slot is via de vlizotrap vanaf de overloop de bergzolder te bereiken.

Bijzonderheden

De onderhoudsvriendelijke tuin is achterom te bereiken en beschikt o.a. over een heerlijk overkapt terras, (kunst)gazon, diverse groene borders en een houten vrijstaande berging. Daarnaast is er een prachtige veranda met glazen pui aanwezig! Kortom; er is altijd wel een plekje te vinden om met het gezin, familie en/of vrienden te genieten van het buitenleven. Tot slot zijn voldoende parkeer- en speelvoorzieningen in de kindvriendelijke wijk aanwezig. Kom gerust kijken en laat je verrassen. Je bent van harte welkom!

Kaart

Kenmerken

Overdracht

Vraagprijs
€ 489.000,- k.k.
Status
Verkocht
Aanvaarding
In overleg
Laatste wijziging
Zaterdag 23 november 2024

Bouw

Type object
Woonhuis, eengezinswoning, hoekwoning
Soort bouw
Bestaande bouw
Bouwperiode
2011
Dakbedekking
Dakpannen
Type dak
Zadeldak
Keurmerken
Energie prestatie advies
Isolatievormen
Volledig geïsoleerd

Oppervlaktes en inhoud

Perceeloppervlakte
182 m²
Woonoppervlakte
119 m²
Inhoud
450 m³
Oppervlakte externe bergruimte
22 m²

Indeling

Aantal bouwlagen
3
Aantal kamers
4 (waarvan 3 slaapkamers)
Aantal badkamers
1 (en 1 apart toilet)

Locatie

Ligging
Aan rustige weg
In woonwijk

Tuin

Type
Achtertuin
Hoofdtuin
Ja
Oriëntering
Noord west
Heeft een achterom
Ja
Staat
Prachtig aangelegd
Tuin 2 - Type
Voortuin
Tuin 2 - Staat
Prachtig aangelegd

Energieverbruik

Energielabel
A

Uitrusting

Warm water
Aardwarmte
Verwarmingssysteem
Vloerverwarming
Warmtepomp
Ventilatie methode
Mechanische ventilatie
Keukenvoorzieningen
Inbouwapparatuur
Badkamervoorzieningen
Douche
Toilet
Wastafel
Heeft airco
Ja
Glasvezelaansluiting aanwezig
Ja
Tuin aanwezig
Ja
Heeft rolluiken
Ja
Heeft schuur/berging
Ja
Heeft een dakraam
Ja
Heeft zonwering
Ja
Heeft zonnepanelen
Ja
Heeft ventilatie
Ja

Kadastrale gegevens

Kadastrale aanduiding
Ede N 1706
Perceeloppervlakte
182 m²
Omvang
Geheel perceel
Eigendomsituatie
Eigen grond

Media

Video

Virtuele tour

Plattegronden

Brochure(s) en overige bijlagen

Beekhuizerzand 33, 6718 MD EDE (1) Download