Open huis: 28 maart 11:00 - 15:00
Koop:Molenstraat 192, 6712 CX Ede - Foto
+50

Molenstraat 192 6712 CX Ede € 619.000,- k.k.

  • Woonhuis
  • 4 kamers
  • 2 slaapkamers
  • 1 badkamer
  • Bouwjaar 1928
  • 316 m² perceeloppervlakte
  • 96 m² gebruiksoppervlakte
  • C Energielabel C
Deze woning heeft een unieke website: www.molenstraat192.nl

Beschrijving

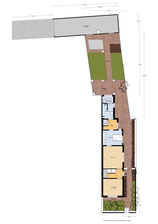
Instapklare 2-onder-1-kapwoning met royale garage in Ede! Ben jij op zoek naar een karakteristieke woning dichtbij alle voorzieningen van Ede? Dan is Molenstraat 192 iets voor jou! Deze instapklare halfvrijstaande woning is uniek dankzij de grote, vrijstaande garage van circa 43 m² en de mogelijkheid om levensloopbestendig te wonen. De woning uit 1928 staat op een perceel van 316 m² en heeft een groot pluspunt: parkeren op eigen terrein. Geniet daarnaast van een heerlijke tuin met sfeervolle veranda. De woning is volledig geïsoleerd, keurig afgewerkt, voorzien van 8 zonnepanelen en biedt volop opbergruimte. Een toplocatie, want het centrum van Ede, winkelcentra Rozenplein en Parkweide, natuurgebieden zoals Landgoed Kernhem en de Ginkelse Heide, snelwegen A30/A12, station en basisscholen liggen allemaal binnen handbereik. Of je nu levensloopbestendig wilt wonen, van tuinieren houdt of graag dichtbij het centrum woont, hier vind je het allemaal. Laat je verrassen tijdens een bezichtiging, we heten jou binnenkort graag welkom!

Deze woning heeft een eigen website met o.a. fullscreen foto's. Kijk op molenstraat192.nl voor alle informatie.

Indeling

Bij binnenkomst in de hal met authentieke granito vloer tref je o.a. de trap, kelder, trapkast en toegang tot de (woon)kamer aan de voorzijde. Deze kamer is nu een gezellige woonkamer, maar kan ook perfect dienen als slaapkamer voor levensloopbestendig wonen. Ook bereik je vanuit de hal de woon-/eetkamer; deze ruimte vormt het hart van de woning, met een sfeervolle houtkachel. Vervolgens kom je in de keuken met een kook-/spoeleiland en diverse inbouwapparatuur: een kookplaat, afzuigkap, combi-oven, koel-/vriescombinatie en vaatwasser. Via de bijkeuken bereik je de tuin, het toilet en de badkamer. De moderne badkamer (2024) is praktisch ingedeeld en voorzien van een wastafelmeubel, spiegel met verwarming, royale inloopdouche met sunshower en een aangrenzende wasruimte met aansluitingen voor wasmachine en droger. Een luik in de wasruimte biedt toegang tot de vliering boven de uitbouw. Op de gehele begane grond ligt comfortabele vloerverwarming en zijn wanden en plafonds glad afgewerkt.

Eerste verdieping

Via de vaste trap in de hal kom je op de overloop met dakkapel en toegang tot twee ruime slaapkamers. De slaapkamer aan de voorzijde beschikt over airconditioning. De royale kamer aan de achterzijde (voorheen 2 kamers) biedt toegang tot het plat dak boven de keuken. Ook op deze verdieping is extra opbergruimte dankzij een vliering die je kunt bereiken via de overloop.

Bijzonderheden

Een groot pluspunt van dit unieke object; de royale garage uit 2022 is volledig geïsoleerd, heeft vloerverwarming, een elektrische deur, een urinoir en een eigen bron. Er is daarnaast extra parkeergelegenheid op eigen terrein aanwezig voor de garage. De tuin is een fijne plek om te ontspannen, met gazon, groene border, een terras en een sfeervolle veranda waardoor je zowel in de zon als in de schaduw kunt genieten. Dit is een instapklare, goed onderhouden woning met karakter, veel ruimte en een toplocatie! Of je nu levensloopbestendig wilt wonen, van tuinieren houdt of graag dichtbij het centrum woont, hier vind je het allemaal!

Kaart

Kenmerken

Overdracht

Vraagprijs
€ 619.000,- k.k.
Aanvaarding
In overleg
Laatste wijziging
Maandag 9 maart 2026

Bouw

Type object
Woonhuis, eengezinswoning, twee onder een kap woning
Soort bouw
Bestaande bouw
Bouwperiode
1928
Dakbedekking
Dakpannen
Type dak
Mansardedak
Keurmerken
Energie prestatie advies
Isolatievormen
Volledig geïsoleerd

Oppervlaktes en inhoud

Perceeloppervlakte
316 m²
Woonoppervlakte
96 m²
Inhoud
402 m³
Oppervlakte overige inpandige ruimten
8 m²
Oppervlakte externe bergruimte
42 m²
Oppervlakte gebouwgebonden buitenruimte
13 m²

Indeling

Aantal bouwlagen
3 (en 1 kelder)
Aantal kamers
4 (waarvan 2 slaapkamers)
Aantal badkamers
1 (en 1 apart toilet)

Tuin

Type
Tuin rondom
Hoofdtuin
Ja
Heeft een achterom
Ja
Staat
Prachtig aangelegd

Energieverbruik

Energielabel
C

CV ketel

CV ketel
Remeha
Warmtebron
Gas
Combiketel
Ja
Eigendom
Eigendom

Uitrusting

Aantal parkeerplaatsen
3
Aantal overdekte parkeerplaatsen
2
Warm water
CV-ketel
Verwarmingssysteem
Centrale verwarming
Houtkachel
Ventilatie methode
Mechanische ventilatie
Badkamervoorzieningen
Inloopdouche
Vloerverwarming
Wastafel
Wastafelmeubel
Parkeergelegenheid
Vrijstaande stenen garage
Heeft een rookkanaal
Ja
Glasvezelaansluiting aanwezig
Ja
Tuin aanwezig
Ja
Heeft een garage
Ja
Heeft zonnepanelen
Ja
Heeft ventilatie
Ja

Kadastrale gegevens

Kadastrale aanduiding
Ede K 14723
Perceeloppervlakte
316 m²
Omvang
Geheel perceel
Eigendomsituatie
Eigen grond

Media

Video

Virtuele tour

Plattegronden

Brochure(s) en overige bijlagen

Molenstraat 192, 6712 CX EDE (1) Download
Open huis 28 maart 11:00 - 15:00