Nieuw in verkoop:Van Den Boschlaan 3, 6717 ZD Ede - Foto
Nieuw in verkoop
+48

Van Den Boschlaan 3 6717 ZD Ede € 795.000,- k.k.

  • Woonhuis
  • 6 kamers
  • 5 slaapkamers
  • 1 badkamers
  • Bouwjaar 2012
  • 184 m² perceeloppervlakte
  • 200 m² gebruiksoppervlakte
  • A+++ Energielabel A+++
Deze woning heeft een unieke website: www.vandenboschlaan3.nl

Beschrijving

Op één van de mooiste locaties van het geliefde Enka-terrein staat deze uitzonderlijk royale gezinswoning met maar liefst 200 m² woonoppervlak. De woning aan Van den Boschlaan 3 in Ede geniet van een vrije ligging aan de voorzijde en biedt een combinatie van ruimte, comfort en duurzaamheid die je zelden tegenkomt. De woning is energiezuinig en voorzien van energielabel A+++, een warmtepomp, vloerverwarming en 14 zonnepanelen. Binnen word je verrast door een sfeervolle woonkeuken met spoeleiland en bar, een uitgebouwde woonkamer en maar liefst vijf royale slaapkamers. Je woont hier in een rustige straat in de populaire wijk op het Enka-terrein, bekend om zijn karakteristieke architectuur en groene omgeving. Binnen enkele minuten sta je in het bos (Landgoed Hoekelum), ideaal voor een ontspannen wandeling of een sportief hardlooprondje. Voor de dagelijkse boodschappen wandel je zo naar winkelcentrum Spindop, terwijl scholen zich eveneens op korte afstand bevinden. Met station Ede-Wageningen op loopafstand en de A12 om de hoek is de bereikbaarheid bovendien uitstekend. Nieuwsgierig geworden en wil je deze bijzondere woning zelf ervaren? Neem dan contact met ons op voor een bezichtiging. Je bent van harte welkom, we laten het je graag zien.

Deze woning heeft een eigen website met o.a. fullscreen foto's. Kijk op vandenboschlaan3.nl voor alle informatie.

Indeling

Via de entree stap je binnen in de hal, een prettige binnenkomst die direct toegang geeft tot de meterkast (met glasvezelaansluiting), een geheel betegelde toiletruimte (met wandcloset en fontein), de praktische berging met warmtepomp (2012), de trapopgang naar de 1e verdieping, de woonkeuken en woonkamer. De uitgebouwde woonkamer is royaal van opzet en nodigt uit tot het creëren van een comfortabele en ruime zithoek. Dankzij de openslaande deuren staat deze ruimte in directe verbinding met het terras en de tuin, waardoor binnen en buiten moeiteloos in elkaar overlopen. De strakke wandafwerking en de pvc-vloer met aangename vloerverwarming zorgen voor een verzorgde uitstraling. Aan de voorzijde van de woning, in het verlengde van de woonkamer, bevindt zich de woonkeuken. Het gezellige spoeleiland met bar vormt het hart van de ruimte – de perfecte plek om ’s ochtends rustig van een kop koffie te genieten of samen te komen tijdens het koken. De keuken is uitgerust met diverse inbouwapparatuur, waaronder een inductiekookplaat met afzuigkap, koelkast, vriezer en een combi oven/magnetron. Dankzij de erker aan de voorzijde is er volop ruimte voor een royale eethoek, waar je lange diners kunt organiseren.

Eerste verdieping

De overloop op de eerste verdieping vormt de verbinding naar drie royale slaapkamers, de separate toiletruimte en de badkamer. De moderne badkamer, uitgevoerd in een rustige, neutrale kleurstelling, is volledig betegeld en uitgerust met een dubbel wastafelmeubel met dubbele waskommen en verlichte spiegels, een designradiator, een comfortabel ligbad en een separate douche. De toiletruimte is eveneens volledig betegeld en voorzien van een strak wandcloset met fontein. Alle drie de slaapkamers zijn ruim en licht van opzet; de kamers aan de achterzijde beschikken over praktische draai-kiepramen. De ouderslaapkamer, gesitueerd aan de voorzijde en over de volledige breedte van de woning, vormt een echte eyecatcher en biedt via openslaande deuren directe toegang tot het balkon aan de voorzijde — een heerlijke plek om de dag te beginnen of juist rustig af te sluiten. Tot slot is de gehele verdieping voorzien van een vinyl vloer en vloerverwarming.

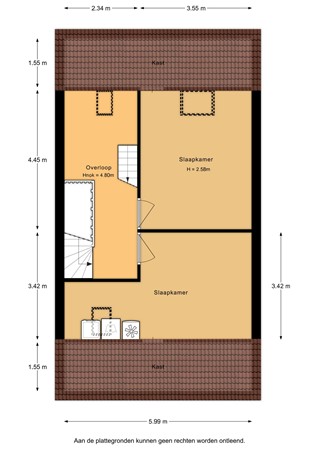
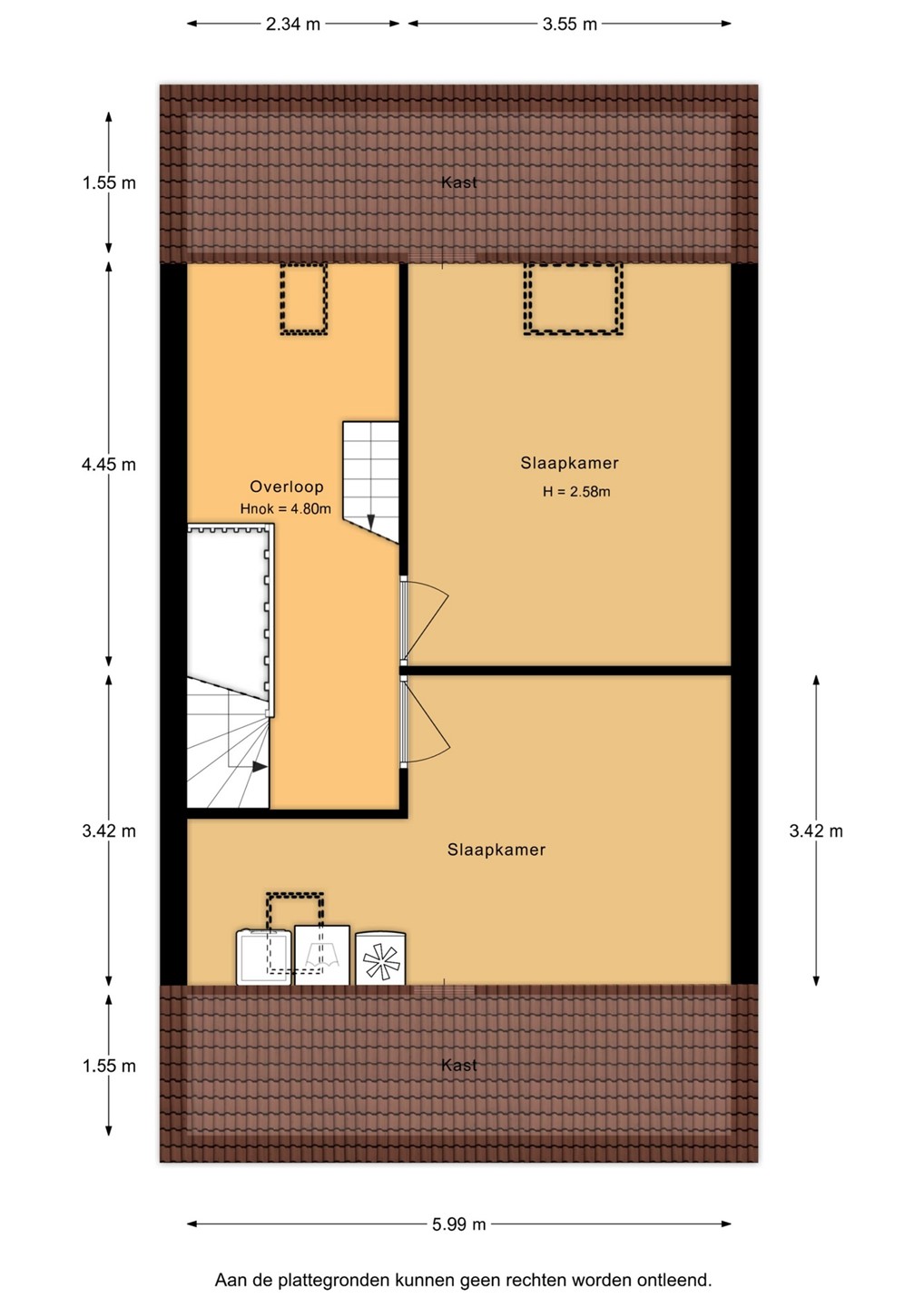
Tweede verdieping

Via een vaste trap bereik je de ruime overloop van de tweede verdieping, die toegang geeft tot twee royale slaapkamers en daarnaast — eveneens via een vaste trap — tot de praktische bergzolder. De slaapkamer aan de voorzijde is voorzien van aansluitingen voor wasmachine en droger, de mv-box en de omvormer van de 14 zonnepanelen, waardoor deze ruimte ook ideaal te gebruiken is als comfortabele wasruimte. Beide slaapkamers beschikken over knieschotten, wat zorgt voor verrassend veel bergruimte. Voor een prettige lichtinval zijn zowel de overloop als beide slaapkamers voorzien van een Velux-dakraam. Ook op deze verdieping ligt een onderhoudsvriendelijke vinylvloer in combinatie met vloerverwarming.

Bijzonderheden

De groene achtertuin bereik je via de openslaande deuren in de woonkamer of via een praktische achterom en vormt een heerlijke plek om buiten te ontspannen. Dankzij de speelse hoogteverschillen in de tuin is er een sfeervol terras gecreëerd, waar je in alle rust kunt genieten van het buitenleven. Achter in de tuin staat een vrijstaande houten berging met overkapping, ideaal voor het stallen van fietsen en het opbergen van tuingereedschap. Tot slot is er in de straat ruime parkeergelegenheid, zodat je altijd comfortabel je auto kunt parkeren.

Kaart

Kenmerken

Overdracht

Vraagprijs
€ 795.000,- k.k.
Status
Nieuw in verkoop
Aanvaarding
In overleg

Bouw

Type object
Woonhuis, eengezinswoning, tussenwoning
Soort bouw
Bestaande bouw
Bouwperiode
2012
Dakbedekking
Dakpannen
Type dak
Zadeldak
Keurmerken
Energie prestatie advies
Politiekeurmerk
Isolatievormen
Volledig geïsoleerd

Oppervlaktes en inhoud

Perceeloppervlakte
184 m²
Woonoppervlakte
200,1 m²
Inhoud
736 m³
Oppervlakte overige inpandige ruimten
8,1 m²
Oppervlakte externe bergruimte
5,5 m²
Oppervlakte gebouwgebonden buitenruimte
1,6 m²

Indeling

Aantal bouwlagen
4
Aantal kamers
6 (waarvan 5 slaapkamers)
Aantal badkamers
1 (en 2 aparte toiletten)

Locatie

Ligging
Aan bosrand
Aan rustige weg
In woonwijk

Tuin

Type
Achtertuin
Hoofdtuin
Ja
Oriëntering
Noorden
Heeft een achterom
Ja
Staat
Prachtig aangelegd
Tuin 2 - Type
Voortuin
Tuin 2 - Oriëntering
Zuiden
Tuin 2 - Staat
Prachtig aangelegd

Energieverbruik

Energielabel
A+++

Uitrusting

Warm water
Elektrische boiler
Verwarmingssysteem
Vloerverwarming
Warmtepomp
Ventilatie methode
Mechanische ventilatie
Keukenvoorzieningen
Inbouwapparatuur
Spoeleiland
Badkamervoorzieningen
Douche
Dubbele wastafel
Ligbad
Vloerverwarming
Wastafelmeubel
Glasvezelaansluiting aanwezig
Ja
Tuin aanwezig
Ja
Heeft schuur/berging
Ja
Heeft een dakraam
Ja
Heeft zonnepanelen
Ja
Heeft ventilatie
Ja

Kadastrale gegevens

Kadastrale aanduiding
Ede C 3662
Perceeloppervlakte
184 m²
Omvang
Geheel perceel
Eigendomsituatie
Eigen grond

Media

Video

Virtuele tour

Plattegronden

Brochure(s) en overige bijlagen

Van Den Boschlaan 3, 6717 ZD EDE (1) Download