Onder bod:Verlengde Maanderweg 105, 6713 LG Ede - Foto
Onder bod
+53

Verlengde Maanderweg 105 6713 LG Ede € 619.000,- k.k.

  • Woonhuis
  • 5 kamers
  • 4 slaapkamers
  • 1 badkamers
  • Bouwjaar 1960
  • 287 m² perceeloppervlakte
  • 113 m² gebruiksoppervlakte
  • C Energielabel C
Deze woning heeft een unieke website: www.verlengdemaanderweg105.nl

Beschrijving

Deze woning wordt verkocht per inschrijving. Geïnteresseerden kunnen hun bod uitbrengen tot maandag 10 november om 12.00 uur.

Aan de fraaie Verlengde Maanderweg 105, net buiten het centrum van Ede, staat deze gemoderniseerde twee-onder-een-kapwoning met karakteristieke details. De woning, gebouwd in 1960 en in 2016 volledig gerenoveerd, is instapklaar en biedt modern wooncomfort. Gesitueerd op een perceel van 287 m² en met een woonoppervlakte van 113 m² beschikt de woning over een moderne keuken met spoeleiland en bar, een sfeervolle woonkamer met erker en houtkachel, en een royale veranda met buitenkeuken. Op de oprit is plaats voor eigen parkeergelegenheid en de fraai aangelegde achtertuin vormt een heerlijke plek om te ontspannen, te eten of te spelen. De locatie is perfect: rustig gelegen, maar met het centrum, scholen, sportvoorzieningen en het intercitystation op korte afstand. Natuurliefhebbers kunnen hun hart ophalen, want de uitgestrekte Ginkelse Heide ligt vlakbij. Dankzij de gunstige ligging ten opzichte van de A12 en A30 zijn steden als Arnhem, Wageningen en Amersfoort bovendien snel bereikbaar. Ben je nieuwsgierig geworden naar deze woning? Neem dan contact met ons op voor een bezichtiging. Je bent van harte welkom!

Deze woning heeft een eigen website met o.a. fullscreen foto's. Kijk op verlengdemaanderweg105.nl voor alle informatie.

Indeling

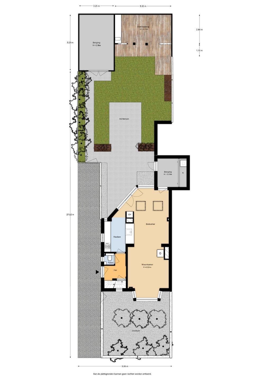
Bij binnenkomst via de entree heb je toegang tot de trapopgang naar de eerste verdieping, de trapkast, het toilet met wandcloset en fontein, en de keuken. De gezellige keuken met spoeleiland en bar vormt een heerlijke plek waar koken en tafelen samenkomen, met direct zicht op de eethoek. De keuken is uitgerust met diverse inbouwapparaten, waaronder een inductiekookplaat, afzuigkap, combi-oven, koelkast en vaatwasser. De eethoek geniet van veel natuurlijk licht dankzij de grote achterpui met openslaande deuren naar het terras en de lichtkoepels in het plafond. Vanuit de eethoek is de berging bereikbaar, voorzien van een vaste schuifwand met aansluitingen voor de wasmachine en droger. Aansluitend van de eethoek bevindt zich de sfeervolle woonkamer, waar de houtkachel en de erker zorgen voor een warme, uitnodigende sfeer. De gehele begane grond is strak en met oog voor detail afgewerkt, met glad gestuukte wanden, inbouwspots en een stijlvolle visgraatvloer die het geheel een warme uitstraling geeft.

Eerste verdieping

Via de vaste trap kom je op de overloop van de eerste verdieping, die toegang biedt tot twee slaapkamers en de badkamer. De volledig betegelde badkamer is uitgerust met een ligbad, douche, wandcloset en een wastafelmeubel. De naastgelegen ouderslaapkamer beschikt over een praktische inbouwkastwand. Ook deze verdieping is strak afgewerkt, met gladde wanden, een glad plafond en inbouwspots.

Tweede verdieping

Via de vaste trap kom je op de overloop van de tweede verdieping, die toegang biedt tot twee slaapkamers. Ook deze verdieping is netjes afgewerkt. De ruime slaapkamer is voorzien van een dakraam, terwijl de kleinere kamer beschikt over een dakkapel. In deze kleinere kamer bevinden zich tevens de aansluitingen van de cv-installatie (Nefit, 2018).

Bijzonderheden

De zonnige achtertuin op het zuidoosten is sfeervol en biedt onder andere een bestraat terras, groene borders, een gazon met sprinklers en een comfortabele veranda. Deze veranda is voorzien van een buitenkeuken, waardoor je hier heerlijk kunt eten en ontspannen met vrienden of familie. Voor het opbergen van fietsen of andere spullen is de aangrenzende stenen berging ideaal. Daarnaast is er parkeergelegenheid op eigen terrein voor je auto(‘s).

Kaart

Kenmerken

Overdracht

Vraagprijs
€ 619.000,- k.k.
Inrichting
Niet gestoffeerd
Inrichting
Niet gemeubileerd
Status
Onder bod
Aanvaarding
In overleg
Laatste wijziging
Maandag 10 november 2025

Bouw

Type object
Woonhuis, eengezinswoning, twee onder een kap woning
Soort bouw
Bestaande bouw
Bouwperiode
1960
Dakbedekking
Dakpannen
Type dak
Zadeldak
Keurmerken
Energie prestatie advies
Isolatievormen
Volledig geïsoleerd

Oppervlaktes en inhoud

Perceeloppervlakte
287 m²
Woonoppervlakte
113 m²
Inhoud
414 m³
Oppervlakte externe bergruimte
17 m²

Indeling

Aantal bouwlagen
3
Aantal kamers
5 (waarvan 4 slaapkamers)
Aantal badkamers
1 (en 1 apart toilet)

Locatie

Ligging
Aan rustige weg
In woonwijk

Tuin

Type
Achtertuin
Hoofdtuin
Ja
Oriëntering
Zuidoost
Staat
Prachtig aangelegd
Tuin 2 - Type
Voortuin
Tuin 2 - Oriëntering
Noord west
Tuin 2 - Staat
Prachtig aangelegd

Energieverbruik

Energielabel
C

CV ketel

CV ketel
Nefit
Warmtebron
Gas
Bouwjaar
2018
Combiketel
Ja
Eigendom
Eigendom

Uitrusting

Aantal parkeerplaatsen
2
Warm water
CV-ketel
Verwarmingssysteem
Centrale verwarming
Ventilatie methode
Mechanische ventilatie
Keukenvoorzieningen
Inbouwapparatuur
Spoeleiland
Badkamervoorzieningen
Douche
Ligbad
Toilet
Wastafelmeubel
Heeft een rookkanaal
Ja
Glasvezelaansluiting aanwezig
Ja
Tuin aanwezig
Ja
Heeft schuur/berging
Ja
Heeft een dakraam
Ja
Heeft zonnepanelen
Ja
Heeft ventilatie
Ja

Kadastrale gegevens

Kadastrale aanduiding
Ede K 15221
Perceeloppervlakte
287 m²
Omvang
Geheel perceel
Eigendomsituatie
Eigen grond

Media

Video

Virtuele tour

Plattegronden

Brochure(s) en overige bijlagen

Verlengde Maanderweg 105, 6713 LG EDE (1) Download