Nieuw in verkoop:Hoofdweg 90, 6744 WN Ederveen - Foto
Nieuw in verkoop
+65

Hoofdweg 90 6744 WN Ederveen € 895.000,- k.k.

  • Woonhuis
  • 5 kamers
  • 3 slaapkamers
  • 1 badkamers
  • Bouwjaar 1935
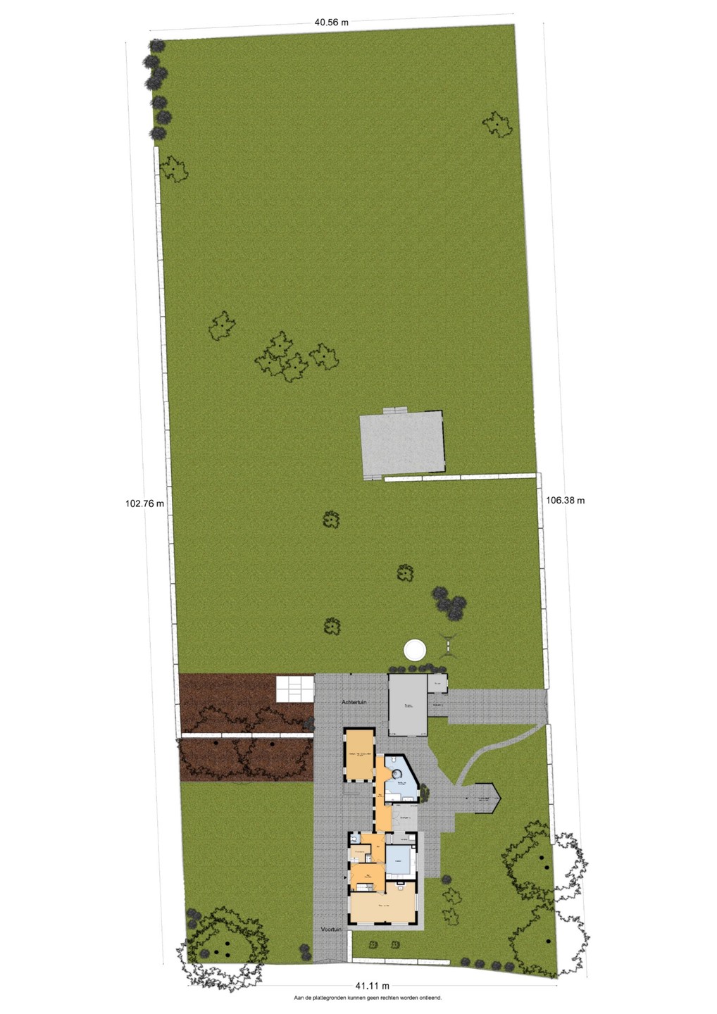
  • 4.185 m² perceeloppervlakte
  • 154 m² gebruiksoppervlakte
  • F Energielabel F

Beschrijving

Deze woning wordt verkocht per inschrijving; de vraagprijs dient te worden beschouwd als een bieden-vanafprijs. Geïnteresseerden kunnen hun bod uitbrengen tot dinsdag 4 november om 12.00 uur.

Op een prachtig vrij perceel, met volop ruimte rondom en toch dichtbij alle voorzieningen van Ederveen, staat deze charmante vrijstaande woning aan Hoofdweg 90 te koop. De woning uit 1935 biedt veel mogelijkheden en is gelegen op een royaal perceel van maar liefst 4.185 m², waardoor privacy en vrijheid gegarandeerd zijn. Het object beschikt onder andere over een moestuin, dierenweide en een praktische berging. Daarnaast is er voldoende ruimte om meerdere auto’s op eigen terrein te parkeren. Alle voorzieningen bevinden zich op de begane grond, waardoor het huis comfortabel en levensloopbestendig is. Dankzij de gunstige ligging zijn Veenendaal, Ederveen en Ede eenvoudig bereikbaar, en ook de snelweg A12 en station Veenendaal-De Klomp liggen binnen enkele minuten. Droom je ervan om vrij te wonen in het buitengebied en wil je ontdekken of dit jouw nieuwe thuis kan worden? Neem dan gerust contact met ons op. Je bent van harte welkom voor een bezichtiging!

Indeling

Via de entree betreed je de ruime hal die toegang geeft tot diverse vertrekken van de woning. In de hal vind je de meterkast en de trapopgang naar de eerste verdieping. Daarnaast is er een opkamer aanwezig die perfect als werkruimte/opslag gebruikt kan worden. Direct rechts aan de voorzijde van de woning ligt de sfeervolle woonkamer met karakteristieke gaskachel en grote raampartijen die veel licht binnenlaten. Aan de andere zijde bevindt zich de gesloten keuken met praktische hoekopstelling. De keuken is compleet uitgerust met inbouwapparatuur, waaronder een SMEG-inductiekookplaat, afzuigkap, oven, koel-vriescombinatie en vaatwasser. Er is voldoende ruimte voor een gezellige eethoek met uitzicht op de tuin. Vanuit de gang bereik je het toilet en de berging; in deze berging zijn de aansluitingen voor wasmachine en droger aanwezig. Verder in de woning loopt een lange gang die leidt naar openslaande deuren naar de overkapping buiten, de badkamer en een slaapkamer op de begane grond. De badkamer is royaal en voorzien van een douche, ligbad, dubbel wastafelmeubel en een toilet. De (slaap)kamer is veelzijdig inzetbaar en kan eveneens dienen als werkkamer of hobbyruimte — ideaal voor thuiswerken of creatieve bezigheden.

Eerste verdieping

Via een vaste trap bereik je de overloop met dakkapel op de eerste verdieping. Vanaf hier heb je toegang tot twee slaapkamers en een vaste kast. Beide slaapkamers zijn voorzien van handige schuifwanden met opbergruimte, terwijl de ouderslaapkamer extra comfort biedt dankzij de airconditioning. De gehele verdieping is afgewerkt met een combinatie van laminaat en vloerbedekking.

Bijzonderheden

De tuin is een waar paradijs voor liefhebbers van het buitenleven en mensen met groene vingers. Zo vind je hier een moestuin met kas waar je je eigen groenten en fruit kunt verbouwen, een dierenren voor het houden van kleine dieren en een ruime berging voor het stallen van fietsen en (tuin)gereedschap. Bovendien ligt er in de tuin, verspreid over het erf, tyleen met kranen als voorbereiding op de eventuele installatie van een beregeningssysteem met pomp. Daarnaast zijn er meerdere zitplekken om heerlijk te ontspannen, zowel op het terras als onder de overkapping. Op het terrein is volop parkeergelegenheid voor meerdere auto’s en er is zelfs een laadpaal aanwezig voor elektrische voertuigen. Tot slot is het erf aan de voor- en zijkant afgesloten met een hekwerk, waarbij aan de voorzijde een elektrische poort is geplaatst en aan de zijkant een poort met inrit.

Kaart

Kenmerken

Overdracht

Vraagprijs
€ 895.000,- k.k.
Inrichting
Niet gestoffeerd
Inrichting
Niet gemeubileerd
Status
Nieuw in verkoop
Aanvaarding
In overleg

Bouw

Type object
Woonhuis, eengezinswoning, vrijstaande woning
Soort bouw
Bestaande bouw
Bouwperiode
1935
Dakbedekking
Dakpannen
Type dak
Dwarskap
Keurmerken
Energie prestatie advies
Isolatievormen
Gedeeltelijk dubbel glas

Oppervlaktes en inhoud

Perceeloppervlakte
4.185 m²
Woonoppervlakte
154 m²
Inhoud
576 m³
Oppervlakte externe bergruimte
33 m²
Oppervlakte gebouwgebonden buitenruimte
8,5 m²

Indeling

Aantal bouwlagen
2
Aantal kamers
5 (waarvan 3 slaapkamers)
Aantal badkamers
1 (en 1 apart toilet)

Tuin

Type
Tuin rondom
Hoofdtuin
Ja
Oriëntering
Oosten
Staat
Normaal

Energieverbruik

Energielabel
F

CV ketel

CV ketel
Daalderop
Warmtebron
Gas
Bouwjaar
2007
Combiketel
Ja
Eigendom
Eigendom

Uitrusting

Warm water
CV-ketel
Elektrische boiler
Verwarmingssysteem
Centrale verwarming
Gaskachels
Ventilatie methode
Natuurlijke ventilatie
Badkamervoorzieningen
Douche
Dubbele wastafel
Ligbad
Toilet
Heeft airco
Ja
Heeft een rookkanaal
Ja
Tuin aanwezig
Ja
Heeft schuur/berging
Ja
Heeft zonnepanelen
Ja

Kadastrale gegevens

Kadastrale aanduiding
Ede G 2893
Perceeloppervlakte
2.000 m²
Omvang
Geheel perceel
Eigendomsituatie
Eigen grond
Kadastrale aanduiding
Ede G 2989
Perceeloppervlakte
785 m²
Omvang
Geheel perceel
Eigendomsituatie
Eigen grond
Kadastrale aanduiding
Ede G 2988
Perceeloppervlakte
500 m²
Omvang
Geheel perceel
Eigendomsituatie
Eigen grond
Kadastrale aanduiding
Ede G 2615
Perceeloppervlakte
900 m²
Omvang
Geheel perceel
Eigendomsituatie
Eigen grond

Media

Video

Virtuele tour

Plattegronden

Brochure(s) en overige bijlagen

Hoofdweg 90, 6744 WN EDERVEEN (1) Download