Nieuw in verkoop:Boven Engweg 7, 6732 CK Harskamp - Foto
Nieuw in verkoop
+35

Boven Engweg 7 6732 CK Harskamp € 515.000,- k.k.

  • Woonhuis
  • 5 kamers
  • 4 slaapkamers
  • 1 badkamers
  • Bouwjaar 2016
  • 134 m² perceeloppervlakte
  • 129 m² gebruiksoppervlakte
  • A Energielabel A
Deze woning heeft een unieke website: www.bovenengweg7.nl

Beschrijving

In de jonge wijk Smachtenburg in Harskamp staat aan de Boven Engweg 7 een instapklare gezinswoning te koop. Deze moderne woning uit 2016 is helemaal van nu: volledig geïsoleerd, voorzien van 13 zonnepanelen (energielabel A) én met comfortabele vloerverwarming op de begane grond en in de badkamer. Je vindt hier vier volwaardige slaapkamers, een gezellige overkapping met glazen schuifpui in de achtertuin en een perceel van 134 m². De ligging is ideaal: rustig aan de rand van het dorp én op loopafstand van het dorpscentrum met alle dagelijkse voorzieningen. Een heerlijke plek voor jou en je gezin! Wil je graag wonen in een sfeervol dorp op de Veluwe? Neem dan zeker contact met ons op voor een bezichtiging. Je bent van harte welkom!

Deze woning heeft een eigen website met o.a. fullscreen foto's. Kijk op bovenengweg7.nl voor alle informatie.

Indeling

Via de voordeur kom je binnen in de hal die toegang geeft tot de meterkast (inclusief glasvezel), het toilet met wandcloset en fonteintje, de trap naar boven en de woonkamer met open keuken.
De keuken ligt aan de voorzijde en heeft een praktische hoekopstelling. Voorzien van een fornuis met ovens, afzuigkap, koelkast en vaatwasser – alles wat je nodig hebt! De keuken loopt naadloos over in de ruime en lichte woonkamer aan de achterzijde van het huis. Strakke wanden, een plafond met inbouwspots en grotendeels een pvc-vloer met vloerverwarming zorgen voor een moderne en comfortabele uitstraling. Vanuit de woonkamer stap je zo onder de overkapping met glazen schuifpui – een fijne plek om binnen en buiten met elkaar te verbinden. Extra opbergruimte? Die vind je in de handige trapkast.

Eerste verdieping

Op de eerste verdieping zijn twee slaapkamers en de badkamer. De royale ouderslaapkamer ligt aan de achterkant van het huis. Op de overloop vind je een ruime inloop-/bergkast. De badkamer is helemaal betegeld en uitgerust met een douche in bad, een tweede toilet en een wastafelmeubel. De tweede slaapkamer aan de voorkant heeft een grote, vaste kastenwand. Ook op deze verdieping zijn de wanden strak afgewerkt en de vloer is afgewerkt met vloerbedekking.

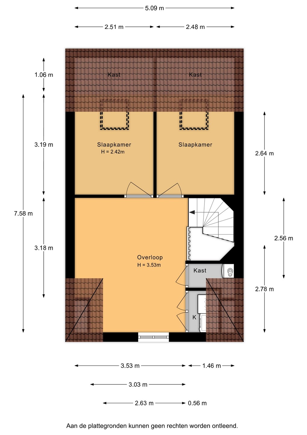
Tweede verdieping

Via een vaste trap kom je op de zolderverdieping. Vanaf de ruime overloop vind je hier o.a. nog twee slaapkamers. De cv-installatie (Intergas, 2016) en de aansluitingen voor wasmachine en droger zijn netjes weggewerkt in mooie inbouwkasten. Ook achter de knieschotten is extra bergruimte gecreëerd. Beide slaapkamers liggen aan de achterzijde en zijn voorzien van een Velux-dakraam. Deze verdieping is strak afgewerkt met gladde wanden, inbouwspots in het plafond en een nette laminaatvloer. Vanaf de overloop is bovendien nog een praktische vliering bereikbaar.

Bijzonderheden

De zonnige achtertuin ligt op het zuiden en is ook via een achterom bereikbaar. Je vindt hier een fijne overkapping met glazen schuifpui – waar je door de aanwezigheid van een sfeervolle haard elk seizoen kunt genieten, een gazon, sierbestrating en een groene border. In de berging is plek voor fietsen en gereedschap. De wijk biedt daarnaast voldoende parkeerplekken en speelvoorzieningen voor kinderen. Ben je benieuwd geworden? Kom gerust langs en ontdek of dit jouw nieuwe thuis wordt!

Kaart

Kenmerken

Overdracht

Vraagprijs
€ 515.000,- k.k.
Status
Nieuw in verkoop
Aanvaarding
In overleg

Bouw

Type object
Woonhuis, eengezinswoning, tussenwoning
Soort bouw
Bestaande bouw
Bouwperiode
2016
Dakbedekking
Dakpannen
Type dak
Samengesteld
Keurmerken
Energie prestatie advies
Isolatievormen
Volledig geïsoleerd

Oppervlaktes en inhoud

Perceeloppervlakte
134 m²
Woonoppervlakte
129 m²
Inhoud
530 m³
Oppervlakte externe bergruimte
6 m²
Oppervlakte gebouwgebonden buitenruimte
17,4 m²

Indeling

Aantal bouwlagen
4
Aantal kamers
5 (waarvan 4 slaapkamers)
Aantal badkamers
1 (en 1 apart toilet)

Locatie

Ligging
In woonwijk

Tuin

Type
Voortuin
Staat
Prachtig aangelegd
Tuin 2 - Type
Achtertuin
Tuin 2 - Hoofdtuin
Ja
Tuin 2 - Oriëntering
Zuiden
Tuin 2 - Heeft een achterom
Ja
Tuin 2 - Staat
Prachtig aangelegd

Energieverbruik

Energielabel
A

CV ketel

CV ketel
Intergas
Warmtebron
Gas
Bouwjaar
2016
Combiketel
Ja
Eigendom
Eigendom

Uitrusting

Warm water
CV-ketel
Verwarmingssysteem
Centrale verwarming
Gashaard
Vloerverwarming (gedeeltelijk)
Ventilatie methode
Mechanische ventilatie
Keukenvoorzieningen
Inbouwapparatuur
Badkamervoorzieningen
Douche
Ligbad
Toilet
Vloerverwarming
Wastafel
Wastafelmeubel
Glasvezelaansluiting aanwezig
Ja
Tuin aanwezig
Ja
Heeft schuur/berging
Ja
Heeft een dakraam
Ja
Heeft zonnepanelen
Ja
Heeft ventilatie
Ja

Kadastrale gegevens

Kadastrale aanduiding
Otterlo A 1817
Perceeloppervlakte
134 m²
Omvang
Geheel perceel
Eigendomsituatie
Eigen grond

Media

Video

Virtuele tour

Plattegronden

Brochure(s) en overige bijlagen

Boven Engweg 7, 6732 CK HARSKAMP (1) Download