Verkocht:De Rank 3, 6732 HA Harskamp - Foto
Verkocht
+33

De Rank 3 6732 HA Harskamp

  • Woonhuis
  • 5 kamers
  • 4 slaapkamers
  • 1 badkamers
  • Bouwjaar 2009
  • 109 m² perceeloppervlakte
  • 115 m² gebruiksoppervlakte
  • A Energielabel A

Beschrijving

Aan De Rank 3 in hartje Harskamp komt nu een goed onderhouden gezinswoning te koop. De woning van bouwjaar 2009 is volledig geïsoleerd en beschikt o.a. over 10 zonnepanelen (energielabel A) en airconditioning. Daarnaast heeft de woning 4 slaapkamers, een woonoppervlakte van 115 m2 en is het gelegen op een perceel van 109 m2. Naast de gunstige ligging in het dorpshart, waar je de dagelijkse voorzieningen treft, heeft het ook vrij uitzicht op de vijver die zich tegenover de woning bevindt. Een prachtige woonlocatie voor jou en je gezin. Als je altijd in Harskamp hebt willen wonen aan de rand van de Veluwe, dan adviseren wij om contact op te nemen met ons kantoor voor een bezichtigingsafspraak. Wellicht bent jij wel de nieuwe bewoner van deze heerlijke woning. Kom gerust kijken, je bent van harte welkom!

Indeling

Via de entree bereik je de hal die toegang geeft tot meterkast (met glasvezelaansluiting), toiletruimte met wandcloset en fonteintje, trapopgang naar de 1e verdieping en de woonkamer. De tuingerichte woonkamer beschikt over openslaande tuindeuren en een praktische provisieruimte onder de trap. Vervolgens kom je in de keuken met rechte opstelling die voorzien is van een 6-pits gaskookplaat met oven (M-System), afzuigkap, koelkast en een vaatwasser. De gehele begane grond is voorzien van een mooie pvc-vloer en de wanden en het plafond zijn glad afgewerkt.

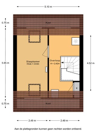
Eerste verdieping

Via de overloop bereik je 3 slaapkamers en de badkamer. De badkamer met comfortabele vloerverwarming beschikt over een vrijstaand ligbad, douche, dubbel wastafelmeubel en toilet. De ouderslaapkamer bevindt zich aan de achterzijde van de woning en heeft net als de ernaast gelegen slaapkamer een Velux-dakraam. De derde slaapkamer is aan de voorzijde van de woning gesitueerd naast de badkamer. Deze verdieping is geheel voorzien van pvc op de vloer.

Tweede verdieping

Via een vaste trap bereik je de overloop waar de c.v.-installatie (Intergas 2009) en de wasmachine- en drogeraansluitingen zijn te vinden. Ook bereik je via de overloop de 4e slaapkamer met 2 Velux-dakramen. Indien gewenst is het zeker mogelijk hier een extra (slaap)kamer te creëren. Over opbergen geen zorgen; er is zowel achter de knieschotten als op de vliering – te bereiken vanuit de slaapkamer – voldoende ruimte aanwezig!

Bijzonderheden

De achtertuin is sfeervol aangelegd en achterom te bereiken. De tuin beschikt o.a. over sierbestrating, groene borders en een vrijstaande houten berging van circa 6 m2. Voor de kliko’s is een praktische ombouw aanwezig en onder de gezellige overkapping is het heerlijk vertoeven met vrienden en/of familie! Tot slot zijn er voldoende parkeer- en speelvoorzieningen in de wijk aanwezig.

Kaart

Kenmerken

Overdracht

Vraagprijs
€ 450.000,- k.k.
Status
Verkocht
Aanvaarding
In overleg
Laatste wijziging
Woensdag 2 april 2025

Bouw

Type object
Woonhuis, eengezinswoning, tussenwoning
Soort bouw
Bestaande bouw
Bouwperiode
2009
Dakbedekking
Dakpannen
Type dak
Zadeldak
Keurmerken
Energie prestatie advies
Isolatievormen
Dakisolatie
Dubbel glas
Muurisolatie
Vloerisolatie
Volledig geïsoleerd

Oppervlaktes en inhoud

Perceeloppervlakte
109 m²
Woonoppervlakte
115 m²
Inhoud
430 m³
Oppervlakte externe bergruimte
6 m²

Indeling

Aantal bouwlagen
4
Aantal kamers
5 (waarvan 4 slaapkamers)
Aantal badkamers
1 (en 1 apart toilet)

Locatie

Ligging
Aan rustige weg
In woonwijk

Tuin

Type
Voortuin
Staat
Prachtig aangelegd
Tuin 2 - Type
Achtertuin
Tuin 2 - Hoofdtuin
Ja
Tuin 2 - Heeft een achterom
Ja
Tuin 2 - Staat
Prachtig aangelegd

Energieverbruik

Energielabel
A

CV ketel

CV ketel
Intergas
Warmtebron
Gas
Bouwjaar
2009
Combiketel
Ja
Eigendom
Eigendom

Uitrusting

Warm water
CV-ketel
Verwarmingssysteem
Airconditioning
Centrale verwarming
Vloerverwarming (gedeeltelijk)
Ventilatie methode
Mechanische ventilatie
Keukenvoorzieningen
Inbouwapparatuur
Badkamervoorzieningen
Douche
Ligbad
Vloerverwarming
Wastafel
Wastafelmeubel
Heeft airco
Ja
Glasvezelaansluiting aanwezig
Ja
Tuin aanwezig
Ja
Heeft rolluiken
Ja
Heeft schuur/berging
Ja
Heeft een dakraam
Ja
Heeft zonnepanelen
Ja
Heeft ventilatie
Ja

Kadastrale gegevens

Kadastrale aanduiding
Otterlo G 2989
Perceeloppervlakte
109 m²
Omvang
Geheel perceel
Eigendomsituatie
Eigen grond

Media

Video

Virtuele tour

Plattegronden

Brochure(s) en overige bijlagen

De Rank 3, 6732 HA HARSKAMP (1) Download