Verkocht:Dorpsstraat 57, 6732 AB Harskamp - Foto
Verkocht
+37

Dorpsstraat 57 6732 AB Harskamp

  • Woonhuis
  • 6 kamers
  • 5 slaapkamers
  • 1 badkamers
  • Bouwjaar 2024
  • 354 m² perceeloppervlakte
  • 149 m² gebruiksoppervlakte
  • A+++ Energielabel A+++

Beschrijving

Welkom bij deze prachtige nieuwbouwwoning aan Dorpsstraat 57 in Harskamp! Dit schitterende huis, met een woonoppervlak van 149 m², is met oog voor detail gebouwd en biedt de mogelijkheid om naar eigen smaak te worden afgewerkt. De woning ligt op een perceel van 354 m² en heeft een royale achtertuin op het zuidwesten, ideaal voor zonliefhebbers. Enkele hoogtepunten zijn de ruime woon- en eetkamer met veel natuurlijk daglicht dankzij de vele ramen, de 5 slaapkamers en de praktische garage. Bovendien is deze energiezuinige woning (energielabel A+++) uitgerust met comfortabele vloerverwarming, een warmtepomp en zonnepanelen. De ligging van het object is ook gunstig te noemen met alle voorzieningen op loopafstand te bereiken. Ook voor prachtige natuur is Het Nationale Park De Hoge Veluwe om de hoek te vinden! Is dit prachtige object aan de rand van Veluwe wellicht de toekomst de woning voor jou en je gezin? Wij nodigen je van harte uit om een bezichtiging in te plannen!

Indeling

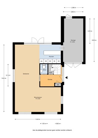
Via de entree kom je in de hal die toegang biedt tot de meterkast, provisiekast, trap naar de eerste verdieping, toiletruimte en de woonkamer. De woonkamer bevindt zich aan de voorzijde van de woning en is voorzien van grote raampartijen die zorgen voor veel natuurlijk licht. Aan de achterzijde van de woning ligt de keuken, die naar eigen smaak kan worden ingericht. Hier is het mogelijk om een (schier)eiland te plaatsen, waardoor er een gezellige woonkeuken ontstaat. Vanuit de keuken geven openslaande deuren toegang tot de achtertuin. Tot slot worden in de hele woning de plafonds saus-klaar en de wanden behang-klaar opgeleverd.

Eerste verdieping

Via de overloop bereik je 3 slaapkamers en de badkamer. De badkamer bevindt zich aan de voorzijde en kan naar eigen smaak worden ingericht. De slaapkamers op deze verdieping zijn ruim opgezet. Een vaste trap leidt naar de overloop op de 2e verdieping. Hier bevinden zich nog 2 royale slaapkamers en een technische ruimte met de warmtepomp.

Bijzonderheden

Vanuit de keuken heb je toegang tot de garage die volledig geïsoleerd is. Deze praktische ruimte biedt voldoende opbergruimte voor je spullen en bijvoorbeeld fiets(en). De achtertuin heeft een gunstige ligging op het zuidwesten en kan naar eigen wens worden aangelegd; creëer jouw ideale plek om van het buitenleven te genieten!

Kaart

Kenmerken

Overdracht

Vraagprijs
€ 650.000,- v.o.n.
Inrichting
Niet gestoffeerd
Inrichting
Niet gemeubileerd
Status
Verkocht
Aanvaarding
In overleg
Laatste wijziging
Zaterdag 8 maart 2025

Bouw

Type object
Woonhuis, eengezinswoning, vrijstaande woning
Soort bouw
Bestaande bouw
Bouwperiode
2024
Dakbedekking
Dakpannen
Type dak
Dwarskap
Keurmerken
Energie prestatie advies
Isolatievormen
Dakisolatie
HR-glas
Muurisolatie
Vloerisolatie
Volledig geïsoleerd

Oppervlaktes en inhoud

Perceeloppervlakte
354 m²
Woonoppervlakte
149 m²
Inhoud
583 m³
Oppervlakte overige inpandige ruimten
17 m²

Indeling

Aantal bouwlagen
3
Aantal kamers
6 (waarvan 5 slaapkamers)
Aantal badkamers
1 (en 1 apart toilet)

Locatie

Ligging
In centrum

Tuin

Type
Tuin rondom
Hoofdtuin
Ja
Oriëntering
Zuid-west
Staat
Dient nog te worden aangelegd.

Energieverbruik

Energielabel
A+++

Uitrusting

Verwarmingssysteem
Vloerverwarming
Warmtepomp
Ventilatie methode
Mechanische ventilatie
Parkeergelegenheid
Aangebouwde stenen garage
Tuin aanwezig
Ja
Heeft een garage
Ja
Heeft zonnepanelen
Ja
Heeft ventilatie
Ja

Kadastrale gegevens

Kadastrale aanduiding
Otterlo G 3232
Perceeloppervlakte
4 m²
Omvang
Geheel perceel
Eigendomsituatie
Eigen grond
Kadastrale aanduiding
Otterlo G 3234
Perceeloppervlakte
350 m²
Omvang
Geheel perceel
Eigendomsituatie
Eigen grond

Media

Video

Virtuele tour

Plattegronden

Brochure(s) en overige bijlagen

Dorpsstraat 57, 6732 AB HARSKAMP (1) Download