Nieuw in verkoop:Kraatsweg 13, 6732 AL Harskamp - Foto
Nieuw in verkoop
+34

Kraatsweg 13 6732 AL Harskamp € 598.000,- k.k.

  • Woonhuis
  • 4 kamers
  • 3 slaapkamers
  • 1 badkamers
  • Bouwjaar 2000
  • 305 m² perceeloppervlakte
  • 135 m² gebruiksoppervlakte
  • A Energielabel A
Deze woning heeft een unieke website: www.kraatsweg13.nl

Beschrijving

Aan Kraatsweg 13 in Harskamp staat deze halfvrijstaande woning met garage te koop! Gelegen op een ruim perceel van 305 m² biedt deze fijne woning volop wooncomfort, waaronder de mogelijkheid om je auto(’s) op eigen terrein te parkeren. In de woonkamer zorgt een sfeervolle houtkachel voor extra gezelligheid, terwijl de ruime woonkeuken uitnodigt tot lange diners. Verder beschikt de woning over drie slaapkamers en een royale open zolder met diverse gebruiksmogelijkheden. Dankzij de centrale ligging in het dorp bevind je je op loopafstand van alle dagelijkse voorzieningen. Bovendien woon je hier aan de rand van Het Nationale Park De Hoge Veluwe, waardoor de prachtige natuur letterlijk om de hoek ligt. Kom het zelf ervaren – je bent van harte welkom voor een bezichtiging!

Deze woning heeft een eigen website met o.a. fullscreen foto's. Kijk op kraatsweg13.nl voor alle informatie.

Indeling

Via de entree bereik je de hal met toegang tot de meterkast (voorzien van glasvezelaansluiting), de trapopgang naar de eerste verdieping, de toiletruimte met wandcloset en fonteintje en de woonkamer met keuken. De woonkeuken ligt aan de achterzijde van de woning en biedt ruimte voor een gezellige eethoek. Via de schuifpui loop je direct de achtertuin in. De hoekkeuken is uitgerust met diverse inbouwapparatuur, waaronder een kookplaat, afzuigkap, combi-oven, koelkast en vaatwasser. Aansluitend bevindt zich de bijkeuken, die eveneens toegang biedt tot de tuin. Aan de voorzijde ligt de sfeervolle woonkamer, voorzien van een houtkachel en een erker die zorgt voor extra licht en een prettig uitzicht op de voortuin.

Eerste verdieping

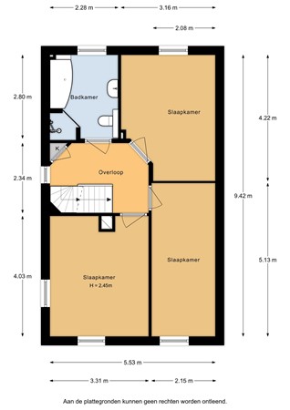
Via een vaste trap kom je op de overloop, die toegang geeft tot drie slaapkamers en de badkamer. De badkamer is compleet uitgerust met een ligbad, douche, wastafelmeubel en toilet. Aan de voorzijde bevinden zich twee slaapkamers; de derde slaapkamer ligt aan de achterzijde, naast de badkamer. De gehele verdieping is voorzien van een nette laminaatvloer.

Tweede verdieping

De ruime open zolder, bereikbaar via een vaste trap, biedt volop mogelijkheden. Denk aan het realiseren van extra slaapkamers, een hobbyruimte of een thuiswerkplek. Hier bevindt zich tevens de cv-installatie (Nefit, 2022).

Bijzonderheden

De woning beschikt over een verzorgde voor- en achtertuin. De achtertuin op het zuidwesten is voorzien van een bestraat terras, een gazon, groene borders en een zonnescherm waaronder je heerlijk beschut kunt zitten. Aan de voorzijde kun je je auto(’s) gemakkelijk op eigen terrein parkeren. Aan Kraatsweg 13 woon je comfortabel, ruim en op een prachtige plek dicht bij de natuur. Een woning met een praktische indeling en volop mogelijkheden voor de toekomst. Benieuwd naar de sfeer en ruimte die dit huis te bieden heeft? We nodigen je van harte uit voor een bezichtiging – je bent welkom!

Kaart

Kenmerken

Overdracht

Vraagprijs
€ 598.000,- k.k.
Status
Nieuw in verkoop
Aanvaarding
In overleg

Bouw

Type object
Woonhuis, eengezinswoning, half vrijstaande woning
Soort bouw
Bestaande bouw
Bouwperiode
2000
Dakbedekking
Dakpannen
Type dak
Zadeldak
Keurmerken
Energie prestatie advies
Isolatievormen
Volledig geïsoleerd

Oppervlaktes en inhoud

Perceeloppervlakte
305 m²
Woonoppervlakte
135 m²
Inhoud
530 m³
Oppervlakte overige inpandige ruimten
17 m²

Indeling

Aantal bouwlagen
3
Aantal kamers
4 (waarvan 3 slaapkamers)
Aantal badkamers
1 (en 1 apart toilet)

Tuin

Type
Voortuin
Staat
Prachtig aangelegd
Tuin 2 - Type
Achtertuin
Tuin 2 - Hoofdtuin
Ja
Tuin 2 - Oriëntering
Zuid-west
Tuin 2 - Staat
Prachtig aangelegd

Energieverbruik

Energielabel
A

CV ketel

CV ketel
Nefit
Warmtebron
Gas
Bouwjaar
2022
Combiketel
Ja
Eigendom
Eigendom

Uitrusting

Aantal parkeerplaatsen
4
Aantal overdekte parkeerplaatsen
1
Warm water
CV-ketel
Verwarmingssysteem
Centrale verwarming
Houtkachel
Ventilatie methode
Mechanische ventilatie
Keukenvoorzieningen
Inbouwapparatuur
Badkamervoorzieningen
Douche
Ligbad
Toilet
Wastafel
Wastafelmeubel
Parkeergelegenheid
Aangebouwde stenen garage
Heeft een rookkanaal
Ja
Tuin aanwezig
Ja
Heeft een garage
Ja
Heeft zonwering
Ja
Heeft ventilatie
Ja

Kadastrale gegevens

Kadastrale aanduiding
Otterlo G 2736
Perceeloppervlakte
305 m²
Omvang
Geheel perceel
Eigendomsituatie
Eigen grond

Media

Video

Virtuele tour

Plattegronden

Brochure(s) en overige bijlagen

Kraatsweg 13, 6732 AL HARSKAMP (1) Download