Verkocht onder voorbehoud:Achterstraat 47A, 6741 BR Lunteren - Foto
Verkocht onder voorbehoud
+31

Achterstraat 47A 6741 BR Lunteren € 519.000,- k.k.

  • Woonhuis
  • 4 kamers
  • 3 slaapkamers
  • 1 badkamer
  • Bouwjaar 1959
  • 362 m² perceeloppervlakte
  • 80 m² gebruiksoppervlakte
  • C Energielabel C

Beschrijving

Let op: deze woning wordt verkocht per inschrijving. Geïnteresseerden kunnen hun bod uitbrengen tot woensdag 29 april vóór 12.00 uur.

Ben je op zoek naar een fijne woning op een toplocatie, vlak bij het dorpscentrum van Lunteren? Dan is deze hoekwoning aan de Achterstraat 47-A absoluut het bekijken waard! De woning dateert uit 1959 en staat op een royaal perceel van 362 m². Je beschikt hier over een ruime garage, meerdere bergingen én volop parkeergelegenheid op eigen terrein. Binnen vind je onder andere een lichte doorzonwoonkamer, drie slaapkamers en een ruime vliering. De ligging is ideaal: op loopafstand van winkels, het station en het prachtige Luntersche Buurtbosch. Klinkt dit als jouw nieuwe thuis? Neem gerust contact met ons op voor een bezichtiging. Je bent van harte welkom!

Indeling

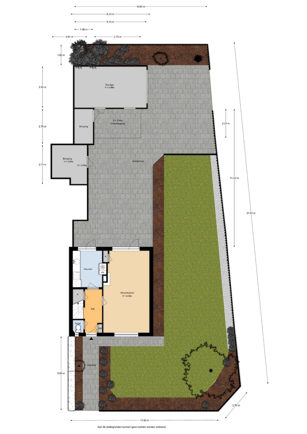
Via de entree kom je in de hal met toegang tot het toilet, de trap naar boven, de meterkast (voorzien van glasvezel), een provisiekast en de woonkamer. De lichte doorzonwoonkamer ligt aan de voorzijde en biedt genoeg ruimte voor een fijne zit- en eethoek. Aan de achterzijde stap je via de deur zo het terras op. Ook de keuken bevindt zich aan de achterzijde, uitgevoerd in een rechte opstelling, met directe toegang tot de tuin.

Graag benoemen we ook de mogelijkheid tot uitbreiding van de woonruimte en het levensloopbestendig maken van de woning, zie plattegronden.

Eerste verdieping

De overloop geeft toegang tot drie slaapkamers en de badkamer. Aan de achterzijde liggen twee slaapkamers, waaronder de ruime ouderslaapkamer, beide voorzien van een vaste kast. Aan de voorzijde bevinden zich de derde slaapkamer en de badkamer, uitgerust met een inloopdouche en wastafelmeubel.
Vanaf de overloop bereik je de ruime vliering. Hier vind je de cv-installatie (Nefit, 2011). Dankzij het dakraam komt er prettig daglicht binnen en met een verbouwing zijn hier extra kamers te realiseren.

Bijzonderheden

De verzorgde tuin rondom de woning is fraai aangelegd met sierbestrating, een groot gazon en groene borders. Aan de achtergevel zorgt een groot zonnescherm voor een fijne, beschutte plek op het terras – ideaal om te ontspannen en van het buitenleven te genieten. Daarnaast beschik je over een royale garage, een houten berging én een stenen berging. Aan opbergruimte dus geen gebrek.
Kortom: een woning met veel mogelijkheden, op een uitstekende locatie in Lunteren. Plan snel een bezichtiging en ervaar het zelf!

Kaart

Kenmerken

Overdracht

Vraagprijs
€ 519.000,- k.k.
Status
Verkocht onder voorbehoud
Aanvaarding
In overleg
Laatste wijziging
Dinsdag 12 mei 2026

Bouw

Type object
Woonhuis, eengezinswoning, hoekwoning
Soort bouw
Bestaande bouw
Bouwperiode
1959
Dakbedekking
Dakpannen
Type dak
Zadeldak
Keurmerken
Energie prestatie advies
Isolatievormen
Dakisolatie
Grotendeels dubbel glas
Muurisolatie
Spouwmuren

Oppervlaktes en inhoud

Perceeloppervlakte
362 m²
Woonoppervlakte
80 m²
Inhoud
333 m³
Oppervlakte overige inpandige ruimten
6 m²
Oppervlakte externe bergruimte
31 m²

Indeling

Aantal bouwlagen
3
Aantal kamers
4 (waarvan 3 slaapkamers)
Aantal badkamers
1 (en 1 apart toilet)

Locatie

Ligging
Aan rustige weg
In woonwijk

Tuin

Type
Tuin rondom
Hoofdtuin
Ja
Heeft een achterom
Ja

Energieverbruik

Energielabel
C

CV ketel

CV ketel
Nefit
Warmtebron
Gas
Bouwjaar
2011
Combiketel
Ja
Eigendom
Eigendom

Uitrusting

Aantal parkeerplaatsen
2
Aantal overdekte parkeerplaatsen
1
Warm water
CV-ketel
Verwarmingssysteem
Centrale verwarming
Badkamervoorzieningen
Inloopdouche
Wastafel
Wastafelmeubel
Parkeergelegenheid
Garagebox
Heeft een rookkanaal
Ja
Glasvezelaansluiting aanwezig
Ja
Tuin aanwezig
Ja
Heeft een garage
Ja
Heeft schuur/berging
Ja
Heeft een dakraam
Ja
Heeft zonwering
Ja

Kadastrale gegevens

Kadastrale aanduiding
Lunteren C 3172
Perceeloppervlakte
362 m²
Omvang
Geheel perceel
Eigendomsituatie
Eigen grond

Media

Video

Virtuele tour

Plattegronden

Brochure(s) en overige bijlagen

Achterstraat 47-A, 6741 BR LUNTEREN (1) Download