Nieuw in verkoop:De Haverkamp 42, 6741 PM Lunteren - Foto
Nieuw in verkoop
+45

De Haverkamp 42 6741 PM Lunteren € 539.000,- k.k.

  • Woonhuis
  • 6 kamers
  • 5 slaapkamers
  • 1 badkamers
  • Bouwjaar 2017
  • 118 m² perceeloppervlakte
  • 124 m² gebruiksoppervlakte
  • A Energielabel A
Deze woning heeft een unieke website: www.dehaverkamp42.nl

Beschrijving

Instapklare gezinswoning met moderne afwerking in Lunteren te koop! Ben je op zoek naar een uitgebouwde en comfortabele woning in een jonge wijk aan de rand van Lunteren? Kom dan zeker een kijkje nemen bij De Haverkamp 42! Deze tussenwoning is gebouwd in 2017, beschikt over energielabel A, 8 zonnepanelen, vloerverwarming én airconditioning – helemaal klaar voor de toekomst. Binnen tref je een strak afgewerkte woning met glad gestucte wanden en een prettige sfeer. Ook buiten kun je genieten: de achtertuin biedt een heerlijke plek om te ontspannen of gezellig samen te zijn. De woning ligt in een kindvriendelijke wijk met alle voorzieningen dichtbij: basisscholen, kinderopvang, gezondheidszorg, het dorpscentrum van Lunteren en natuurlijk het Luntersche Buurtbosch. Dankzij de ligging nabij de Westzoom zit je bovendien in een paar minuten op de A30. Een moderne woning waar je zó in kunt trekken! Wil je deze woning met eigen ogen bekijken? Je bent van harte welkom voor een bezichtiging.

Deze woning heeft een eigen website met o.a. fullscreen foto's. Kijk op dehaverkamp42.nl voor alle informatie.

Indeling

Via de entree kom je in de hal met toegang tot de meterkast (inclusief glasvezelaansluiting), het toilet met fontein, de trapopgang en de woonkamer. De ruime woonkamer ligt aan de achterzijde en is keurig afgewerkt met gladde wanden en een pvc-vloer met vloerverwarming. Dankzij de uitbouw is er volop ruimte voor een royale zithoek en een grote eettafel. Via de tuindeur stap je zo het terras op. De open keuken aan de voorzijde is uitgevoerd in een moderne hoekopstelling en voorzien van alle benodigde inbouwapparatuur: een inductiekookplaat, afzuigkap, combi-oven, koelkast en vaatwasser.

Eerste verdieping

Vanaf de overloop zijn drie slaapkamers en de badkamer bereikbaar. De badkamer is geheel betegeld, heeft vloerverwarming en is voorzien van een inloopdouche, wandcloset en modern wastafelmeubel. De ouderlijke slaapkamer ligt aan de voorzijde en beschikt over een grote kastenwand. De twee overige slaapkamers bevinden zich aan de achterzijde. Ook deze verdieping is netjes afgewerkt met gladde wanden en een laminaatvloer.

Tweede verdieping

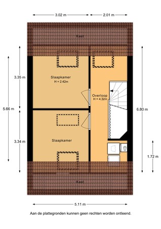
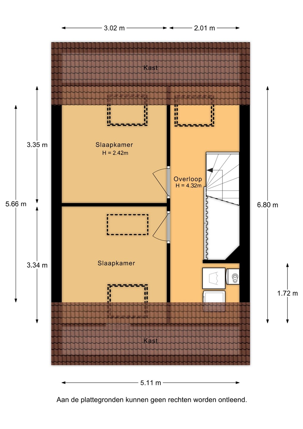
Een vaste trap biedt toegang tot de royale zolderverdieping, waar zich twee ruime kamers bevinden die uitstekend kunnen dienen als slaapkamers of bijvoorbeeld als werk- of hobbyruimte. Dankzij de Velux dakramen beschikken beide kamers én de overloop over prettig natuurlijk daglicht. De kamer aan de voorzijde is bovendien voorzien van een vlizotrap die toegang geeft tot de bergvliering. Op de overloop bevinden zich de cv-installatie (Atag, 2017) evenals de aansluitingen voor de wasmachine en droger.

Bijzonderheden

De achtertuin is zeer onderhoudsvriendelijk aangelegd en via een poort aan de achterzijde van de woning eenvoudig bereikbaar. De tuin beschikt over een bestraat terras, een (kunst)gazon en een praktische houten berging. Achter de woning is bovendien volop parkeergelegenheid aanwezig, evenals diverse speelvoorzieningen in de directe omgeving – wat het wonen hier extra comfortabel maakt.

Kaart

Kenmerken

Overdracht

Vraagprijs
€ 539.000,- k.k.
Status
Nieuw in verkoop
Aanvaarding
In overleg

Bouw

Type object
Woonhuis, eengezinswoning, tussenwoning
Soort bouw
Bestaande bouw
Bouwperiode
2017
Dakbedekking
Dakpannen
Type dak
Zadeldak
Keurmerken
Energie prestatie advies
Isolatievormen
Volledig geïsoleerd

Oppervlaktes en inhoud

Perceeloppervlakte
118 m²
Woonoppervlakte
124 m²
Inhoud
443 m³
Oppervlakte overige inpandige ruimten
2,2 m²
Oppervlakte externe bergruimte
6 m²

Indeling

Aantal bouwlagen
4
Aantal kamers
6 (waarvan 5 slaapkamers)
Aantal badkamers
1 (en 1 apart toilet)

Locatie

Ligging
Aan rustige weg
In woonwijk

Tuin

Type
Voortuin
Staat
Prachtig aangelegd
Tuin 2 - Type
Achtertuin
Tuin 2 - Hoofdtuin
Ja
Tuin 2 - Heeft een achterom
Ja
Tuin 2 - Staat
Prachtig aangelegd

Energieverbruik

Energielabel
A

CV ketel

CV ketel
Atag
Warmtebron
Gas
Bouwjaar
2017
Combiketel
Ja
Eigendom
Eigendom

Uitrusting

Warm water
CV-ketel
Verwarmingssysteem
Airconditioning
Centrale verwarming
Vloerverwarming (gedeeltelijk)
Ventilatie methode
Mechanische ventilatie
Keukenvoorzieningen
Inbouwapparatuur
Badkamervoorzieningen
Inloopdouche
Toilet
Vloerverwarming
Wastafel
Wastafelmeubel
Glasvezelaansluiting aanwezig
Ja
Tuin aanwezig
Ja
Heeft schuur/berging
Ja
Heeft een dakraam
Ja
Heeft zonnepanelen
Ja
Heeft ventilatie
Ja

Kadastrale gegevens

Kadastrale aanduiding
Lunteren K 8286
Perceeloppervlakte
118 m²
Omvang
Geheel perceel
Eigendomsituatie
Eigen grond

Media

Video

Virtuele tour

Plattegronden

Brochure(s) en overige bijlagen

De Haverkamp 42, 6741 PM LUNTEREN (1) Download