Verkocht onder voorbehoud:Klomperweg 29, 6741 BK Lunteren - Foto
Verkocht onder voorbehoud
+42

Klomperweg 29 6741 BK Lunteren € 728.500,- k.k.

  • Woonhuis
  • 6 kamers
  • 4 slaapkamers
  • 1 badkamers
  • Bouwjaar 1974
  • 390 m² perceeloppervlakte
  • 152 m² gebruiksoppervlakte
  • D Energielabel D
Deze woning heeft een unieke website: www.klomperweg29.nl

Beschrijving

Comfortabel wonen dichtbij het hart van Lunteren!
Ben je op zoek naar een fijne plek om te wonen, dicht bij het dorpscentrum? Dan is deze halfvrijstaande woning aan de Klomperweg 29 misschien precies wat je zoekt! Deze keurig onderhouden woning uit 1974 heeft alles wat je nodig hebt: een diepe, zonnige tuin op het zuiden, een lichte serre met glazen schuifpui, airconditioning en 12 zonnepanelen. Daarnaast biedt het perceel van 390 m² een ruime garage, extra berging en tuinhuis. Met een woonoppervlakte van 153 m² en een ruime open zolder met volop mogelijkheden om extra (slaap)kamers te realiseren, is er ruimte genoeg voor iedereen. De ligging is ideaal – op loopafstand van het centrum, met winkels, het station én het prachtige Luntersche Buurtbosch binnen handbereik. Parkeren? Dat doe je eenvoudig op eigen terrein, met plek voor meerdere auto’s. Klinkt dit als jouw nieuwe thuis? Neem gerust contact met ons op voor een bezichtiging. Je bent van harte welkom!

Deze woning heeft een eigen website met o.a. fullscreen foto's. Kijk op klomperweg29.nl voor alle informatie.

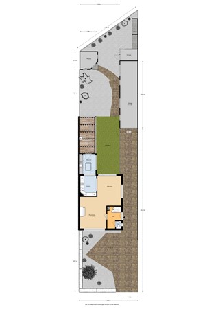
Indeling

Via de entree kom je in de hal met toegang tot het toilet, de trap naar de eerste verdieping, de meterkast (met glasvezelaansluiting) en de woonkamer. De woonkamer ligt aan de voorzijde van de woning en straalt sfeer uit mede dankzij de sierhaard. Op warme dagen zorgt de airco voor verkoeling. Aan de achterzijde bevindt zich het eetgedeelte, met grote raampartijen waardoor veel daglicht binnenvalt. Er is ruimte voor meerdere zithoeken of een grote eettafel. De open keuken in hoekopstelling is compleet uitgerust met een kookplaat, afzuigkap, oven, magnetron, koelkast en vaatwasser. Aansluitend vind je de bijkeuken, voorzien van een daklicht en vaste kast, met toegang tot de tuin en de serre. De serre met glazen schuifpui is een heerlijke plek om te ontspannen – het hele jaar door geniet je hier van het uitzicht op de tuin en het buitenleven.

Eerste verdieping

Via de vaste trap kom je op de overloop met toegang tot twee slaapkamers, de wasruimte en de badkamer. De hoofd¬slaapkamer aan de achterzijde beschikt over airconditioning. De tweede slaapkamer en de wasruimte (eventueel te gebruiken als extra slaapkamer) liggen aan de voorzijde. Daarnaast is er een ruime vaste kast op de overloop.

Tweede verdieping

De ruime open zolder – te bereiken via een vaste trap - biedt volop mogelijkheden om extra slaapkamer(s) te creëren. Hier bevindt zich ook de cv-installatie (Remeha, 2016). Dankzij het gevelraam en dakraam is er veel daglicht aanwezig.

Bijzonderheden

De verzorgde tuin rondom de woning biedt veel zon, privacy en een fijne sfeer. De zuidelijke ligging zorgt ervoor dat je de hele dag kunt genieten van de zon. Met sierbestrating, veel groen, (kunst)gazon en meerdere zitplekken is er altijd een gezellig hoekje om te ontspannen of samen te eten. De serre vormt de perfecte verbinding tussen binnen en buiten. Daarnaast is er een royale garage, berging, houthok en tuinhuis – dus aan opbergruimte geen gebrek. Parkeren kan eenvoudig op eigen terrein, met ruimte voor meerdere auto’s. Kortom: een ruime, goed onderhouden woning op een toplocatie in Lunteren, met alles wat je nodig hebt voor comfortabel wonen!

Kaart

Kenmerken

Overdracht

Vraagprijs
€ 728.500,- k.k.
Status
Verkocht onder voorbehoud
Aanvaarding
In overleg
Laatste wijziging
Woensdag 17 december 2025

Bouw

Type object
Woonhuis, eengezinswoning, twee onder een kap woning
Soort bouw
Bestaande bouw
Bouwperiode
1974
Dakbedekking
Dakpannen
Type dak
Zadeldak
Keurmerken
Energie prestatie advies
Isolatievormen
Dakisolatie
Dubbel glas

Oppervlaktes en inhoud

Perceeloppervlakte
390 m²
Woonoppervlakte
152 m²
Inhoud
585 m³
Oppervlakte externe bergruimte
38 m²
Oppervlakte gebouwgebonden buitenruimte
15 m²

Indeling

Aantal bouwlagen
3
Aantal kamers
6 (waarvan 4 slaapkamers)
Aantal badkamers
1 (en 1 apart toilet)

Tuin

Type
Tuin rondom
Hoofdtuin
Ja
Oriëntering
Zuiden
Staat
Prachtig aangelegd

Energieverbruik

Energielabel
D

CV ketel

CV ketel
Remeha
Warmtebron
Gas
Bouwjaar
2016
Combiketel
Ja
Eigendom
Eigendom

Uitrusting

Aantal parkeerplaatsen
2
Warm water
CV-ketel
Verwarmingssysteem
Centrale verwarming
Houtkachel
Keukenvoorzieningen
Inbouwapparatuur
Badkamervoorzieningen
Douche
Ligbad
Toilet
Wastafel
Wastafelmeubel
Parkeergelegenheid
Vrijstaande stenen garage
Heeft airco
Ja
Glasvezelaansluiting aanwezig
Ja
Tuin aanwezig
Ja
Heeft een garage
Ja
Beschikt over een internetverbinding
Ja
Heeft schuur/berging
Ja
Heeft een dakraam
Ja
Heeft een schuifpui
Ja
Heeft zonwering
Ja
Heeft zonnepanelen
Ja

Kadastrale gegevens

Kadastrale aanduiding
Ede C 3003
Perceeloppervlakte
390 m²
Omvang
Geheel perceel
Eigendomsituatie
Eigen grond

Media

Video

Virtuele tour

Plattegronden

Brochure(s) en overige bijlagen

Klomperweg 29, 6741 BK LUNTEREN (1) Download