Nieuw in verkoop:Pothovenlaan 18, 6731 AJ Otterlo - Foto
Nieuw in verkoop
+57

Pothovenlaan 18 6731 AJ Otterlo € 498.000,- k.k.

  • Woonhuis
  • 5 kamers
  • 4 slaapkamers
  • 1 badkamers
  • Bouwjaar 1960
  • 233 m² perceeloppervlakte
  • 121 m² gebruiksoppervlakte
  • C Energielabel C
Deze woning heeft een unieke website: www.pothovenlaan18.nl

Beschrijving

Aan de Pothovenlaan 18 in Otterlo staat deze instapklare tussenwoning met een moderne woonkeuken en diepe achtertuin te koop. De woning, oorspronkelijk gebouwd in 1960, is in de afgelopen jaren volledig gemoderniseerd en uitgebouwd. Met een woonoppervlakte van 113 m² en een perceel van 233 m² biedt deze ideale gezinswoning volop ruimte en comfort. De ruime woon- en eetkamer heeft een vrij uitzicht aan de voorzijde en sluit naadloos aan op de moderne keuken. Ook de badkamer en de vier slaapkamers zijn vernieuwd en strak afgewerkt. De woning ligt in een rustige straat, op loopafstand van alle voorzieningen die Otterlo te bieden heeft. Natuurliefhebbers zullen hier eveneens genieten: zowel het bos als de heide liggen op korte afstand, perfect voor een wandeling of fietstocht. Ben je op zoek naar een comfortabele gezinswoning op de Veluwe? Kom dan gerust eens kijken. Je bent van harte welkom!

Deze woning heeft een eigen website met o.a. fullscreen foto's. Kijk op pothovenlaan18.nl voor alle informatie.

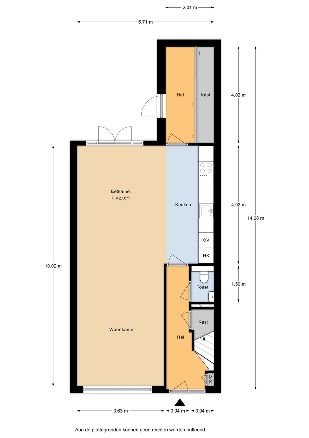
Indeling

Bij binnenkomst via de entree kom je in de hal, die toegang biedt tot de meterkast (voorzien van glasvezel), de trapopgang naar de eerste verdieping, een provisieruimte, het toilet met wandcloset en de woonkamer. De moderne woonkeuken (vernieuwd in 2021) heeft een rechte opstelling en is uitgerust met diverse inbouwapparatuur, waaronder een 5-pits inductiekookplaat met down draft-afzuigsysteem, een koelkast, combi-oven/magnetron en een vaatwasser. Aan de voorzijde van de lichte doorzonwoonkamer bevindt zich de zithoek met vrij uitzicht, terwijl aan de achterzijde ruimte is voor een royale eethoek met openslaande deuren naar de achtertuin. Vanuit de woonkamer is tevens de bijkeuken bereikbaar, waar een praktische schuifwand de aansluitingen voor de wasmachine netjes uit het zicht houdt en eveneens toegang biedt tot de tuin. De gehele begane grond is afgewerkt met vloerverwarming, een strak gestuukt plafond en inbouwspots, wat zorgt voor een moderne en verzorgde uitstraling.

Eerste verdieping

Via de vaste trap kom je op de overloop van de eerste verdieping, die toegang biedt tot drie slaapkamers en de badkamer. De moderne, volledig betegelde badkamer is uitgerust met een inloop(regen)douche, een wastafelmeubel en vloerverwarming, wat zorgt voor extra comfort. Naast de badkamer bevindt zich een slaapkamer met een praktische inbouwkast. Aan de achterzijde van de woning liggen de overige twee slaapkamers, waarvan de ouderslaapkamer is voorzien van een vaste kastenwand.

Tweede verdieping

Via de vaste trap kom je op de overloop van de tweede verdieping, die toegang biedt tot de vierde slaapkamer met bergruimtes. Op de overloop bevindt zich tevens de cv-installatie (Remeha, 2024).

Bijzonderheden

De diepe achtertuin ligt op het zuiden en is onderhoudsvriendelijk ingericht met sierbestrating, een royaal gazon en een bestraat terras met schaduwdoek. Achterin de tuin staat een houten schuur die voldoende ruimte biedt voor bijvoorbeeld fietsen en tuingereedschap. Daarnaast is er een aangebouwde overkapping met achterom. In de directe omgeving is er bovendien voldoende parkeergelegenheid en speelruimte voor kinderen.

Kaart

Kenmerken

Overdracht

Vraagprijs
€ 498.000,- k.k.
Inrichting
Niet gestoffeerd
Inrichting
Niet gemeubileerd
Status
Nieuw in verkoop
Aanvaarding
In overleg

Bouw

Type object
Woonhuis, eengezinswoning, tussenwoning
Soort bouw
Bestaande bouw
Bouwperiode
1960
Dakbedekking
Dakpannen
Type dak
Zadeldak
Keurmerken
Energie prestatie advies
Isolatievormen
Volledig geïsoleerd

Oppervlaktes en inhoud

Perceeloppervlakte
233 m²
Woonoppervlakte
121,4 m²
Inhoud
425 m³
Oppervlakte externe bergruimte
15 m²

Indeling

Aantal bouwlagen
3
Aantal kamers
5 (waarvan 4 slaapkamers)
Aantal badkamers
1 (en 2 aparte toiletten)

Locatie

Ligging
In woonwijk
Vrij uitzicht

Tuin

Type
Voortuin
Oriëntering
Noorden
Staat
Prachtig aangelegd
Tuin 2 - Type
Achtertuin
Tuin 2 - Hoofdtuin
Ja
Tuin 2 - Oriëntering
Zuiden
Tuin 2 - Heeft een achterom
Ja
Tuin 2 - Staat
Prachtig aangelegd

Energieverbruik

Energielabel
C

CV ketel

CV ketel
Remeha
Warmtebron
Gas
Bouwjaar
2024
Combiketel
Ja
Eigendom
Eigendom

Uitrusting

Warm water
CV-ketel
Verwarmingssysteem
Centrale verwarming
Vloerverwarming (gedeeltelijk)
Ventilatie methode
Natuurlijke ventilatie
Keukenvoorzieningen
Inbouwapparatuur
Badkamervoorzieningen
Inloopdouche
Vloerverwarming
Wastafelmeubel
Glasvezelaansluiting aanwezig
Ja
Tuin aanwezig
Ja
Telefoonaansluiting aanwezig
Ja
Heeft schuur/berging
Ja
Heeft een dakraam
Ja
Heeft zonwering
Ja

Kadastrale gegevens

Kadastrale aanduiding
Otterlo B 1996
Perceeloppervlakte
233 m²
Omvang
Geheel perceel
Eigendomsituatie
Eigen grond

Media

Video

Virtuele tour

Plattegronden

Brochure(s) en overige bijlagen

Pothovenlaan 18, 6731 AJ OTTERLO (1) Download