Open huis: 28 maart 11:00 - 15:00
Koop:Acacialaan 25, 3927 GD Renswoude - Foto
+50

Acacialaan 25 3927 GD Renswoude € 769.000,- k.k.

  • Woonhuis
  • 4 kamers
  • 3 slaapkamers
  • 1 badkamer
  • Bouwjaar 1986
  • 438 m² perceeloppervlakte
  • 158 m² gebruiksoppervlakte
  • B Energielabel B
Deze woning heeft een unieke website: www.acacialaan25renswoude.nl

Beschrijving

Stap binnen in deze vrijstaande woning aan de Acacialaan 25 in Renswoude, die de afgelopen jaren (2022) volledig is gemoderniseerd. De woning is gelegen aan een rustige straat met een vrije ligging aan de voorzijde. Gebouwd in 1986, is de woning volledig geïsoleerd, voorzien van 14 zonnepanelen en energielabel B. Met een woonoppervlak van circa 158 m² biedt de woning volop leefruimte. Dankzij de moderniseringen in de afgelopen jaren zijn onder andere een nieuwe keuken en badkamer geplaatst en is de woning voorzien van comfortabele vloerverwarming en airco’s. Gesitueerd op een perceel van 438 m² beschikt de woning over een recent aangelegde achtertuin waar je heerlijk buiten kunt genieten. Aan de voorzijde bevindt zich een oprit met parkeergelegenheid op eigen terrein. De woning is gelegen in een kindvriendelijke wijk met een speelveld aan de voorzijde en scholen in de directe omgeving, wat het tot een fijn gezinshuis maakt. Daarnaast liggen het dorpscentrum van Renswoude en het Kasteel Bos Renswoude op korte afstand. Ben je benieuwd naar deze complete en instapklare woning? Plan dan een bezichtiging in. Je bent van harte welkom!

Deze woning heeft een eigen website met o.a. fullscreen foto's. Kijk op acacialaan25renswoude.nl voor alle informatie.

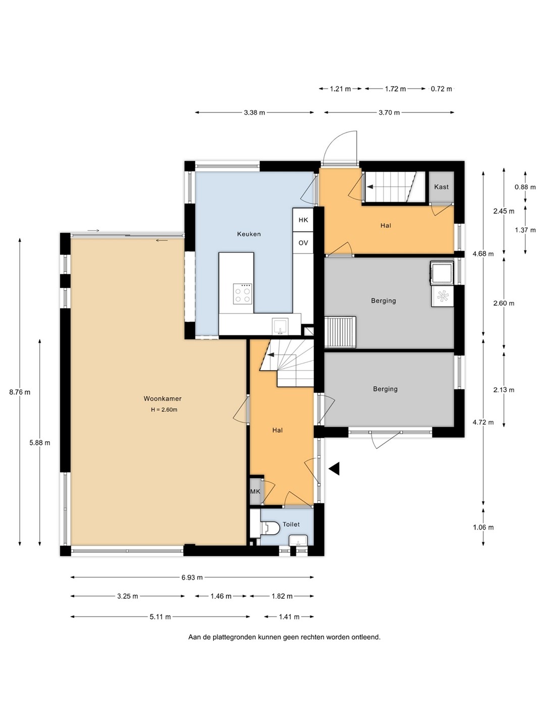
Indeling

Via de entree stap je binnen in de hal, die toegang geeft tot de toiletruimte met wandcloset en fonteintje, de meterkast met glasvezelaansluiting, de trapopgang naar de 1e verdieping, de garage en de woonkamer. De royale woonkamer is een heerlijke leefruimte met een strakke plavuizenvloer en comfortabele vloerverwarming. De ruime opzet maakt het eenvoudig om zowel een royale zithoek als eethoek te creëren. Dankzij de schuifpui aan de tuinzijde vloeien binnen en buiten naadloos in elkaar en stap je zo het terras op. De moderne keuken (2022) staat in (half)open verbinding met de woonkamer en vormt een prettige plek voor kookliefhebbers. De U-vormige opstelling biedt veel werk- en bergruimte en is uitgerust met hoogwaardige inbouwapparatuur, waaronder een inductiekookplaat, afzuigkap, vaatwasser, koelkast, combi-oven en Quooker. Vanuit de keuken is de bijkeuken bereikbaar. Deze praktische ruimte geeft toegang tot de achtertuin, de (betonnen) provisiekelder en de garage. De garage is opgedeeld in twee delen en beschikt over aansluitingen voor wasmachine en droger.

Eerste verdieping

Middels de vaste trap bereik je de overloop van de eerste verdieping, die toegang geeft tot 3 slaapkamers, de badkamer en via een vlizotrap tot de zolderverdieping. De zolder, waar de cv-installatie (Intergas, 2022) is gesitueerd, biedt voldoende bergruimte. De keurige badkamer is uitgevoerd in een neutrale, tijdloze kleurstelling en volledig betegeld. Dankzij de vloerverwarming en het nieuwe dakkapel is dit een comfortabele en verrassend ruime ruimte. De badkamer is voorzien van een wastafelmeubel met spiegel en verlichting, een inloopdouche en een toilet. De 2 slaapkamers aan de zijzijdes van de woning zijn uitgerust met een praktische kastenwand. De middelste slaapkamer beschikt over een vernieuwd dakkapel aan de voorzijde, wat zorgt voor extra ruimte en lichtinval. Tot slot biedt 1 van de slaapkamers bovendien toegang tot een leuk balkon met uitzicht op de tuin.

Bijzonderheden

De sfeervolle en recent aangelegde (juli 2025) achtertuin is rondom de woning gelegen en biedt op ieder moment van de dag een fijne plek om buiten te ontspannen. Het geheel, incl. bewatering, is verzorgd aangelegd met een bestraat terras, groene borders en een overkapping, waardoor je zowel in de zon als in de schaduw heerlijk kunt zitten. Een ideale tuin om van te kunnen genieten. Aan de voorzijde van de woning bevindt zich de nieuwe oprit (december 2025), waardoor parkeren op eigen terrein eenvoudig mogelijk is. Daarnaast ligt aan de overzijde van de woning een speelveld, waar kinderen veilig en dichtbij kunnen spelen.

Kaart

Kenmerken

Overdracht

Vraagprijs
€ 769.000,- k.k.
Aanvaarding
In overleg
Laatste wijziging
Maandag 9 maart 2026

Bouw

Type object
Woonhuis, eengezinswoning, vrijstaande woning
Soort bouw
Bestaande bouw
Bouwperiode
1986
Dakbedekking
Dakpannen
Type dak
Zadeldak
Keurmerken
Energie prestatie advies
Isolatievormen
Volledig geïsoleerd

Oppervlaktes en inhoud

Perceeloppervlakte
438 m²
Woonoppervlakte
158,4 m²
Inhoud
701 m³
Oppervlakte overige inpandige ruimten
32,8 m²
Oppervlakte externe bergruimte
4,1 m²
Oppervlakte gebouwgebonden buitenruimte
5,8 m²

Indeling

Aantal bouwlagen
3
Aantal kamers
4 (waarvan 3 slaapkamers)
Aantal badkamers
1 (en 1 apart toilet)

Locatie

Ligging
Aan rustige weg
In woonwijk
Vrij uitzicht

Tuin

Type
Tuin rondom
Hoofdtuin
Ja
Oriëntering
West
Staat
Prachtig aangelegd

Energieverbruik

Energielabel
B

CV ketel

CV ketel
Intergas
Warmtebron
Gas
Bouwjaar
2022
Combiketel
Ja
Eigendom
Eigendom

Uitrusting

Aantal parkeerplaatsen
2
Warm water
CV-ketel
Verwarmingssysteem
Centrale verwarming
Vloerverwarming (gedeeltelijk)
Ventilatie methode
Mechanische ventilatie
Keukenvoorzieningen
Inbouwapparatuur
Badkamervoorzieningen
Inloopdouche
Toilet
Vloerverwarming
Wastafelmeubel
Heeft airco
Ja
Heeft een balkon
Ja
Glasvezelaansluiting aanwezig
Ja
Tuin aanwezig
Ja
Heeft rolluiken
Ja
Heeft schuur/berging
Ja
Heeft een schuifpui
Ja
Heeft zonnepanelen
Ja
Heeft ventilatie
Ja

Kadastrale gegevens

Kadastrale aanduiding
Renswoude C 2283
Perceeloppervlakte
438 m²
Omvang
Geheel perceel
Eigendomsituatie
Eigen grond

Media

Video

Virtuele tour

Plattegronden

Brochure(s) en overige bijlagen

Acacialaan 25, 3927 GD RENSWOUDE (1) Download
Open huis 28 maart 11:00 - 15:00