+41

Duyst van Voorhoutweg 43 3927 BM Renswoude € 529.000,- k.k.

  • Woonhuis
  • 5 kamers
  • 4 slaapkamers
  • 1 badkamers
  • Bouwjaar 1968
  • 233 m² perceeloppervlakte
  • 128 m² gebruiksoppervlakte
  • A+ Energielabel A+
Deze woning heeft een unieke website: www.duystvanvoorhoutweg43.nl

Beschrijving

OPEN HUIS - zaterdag 28 februari van 11.00 tot 15.00 uur - je bent van harte welkom!

Deze hoekwoning aan Duyst van Voorhoutweg 43 in Renswoude heeft alles in huis om comfortabel te wonen. Denk aan zonnepanelen, vloerverwarming en een keurige afwerking, maar ook aan een fijne tuin met veranda waar je het hele jaar door van kunt genieten. De woning, gebouwd in 1968, staat op een perceel van 233 m2 en beschikt over energielabel B. Binnen is alles strak afgewerkt met gladde wanden, in de woonkamer vind je een sfeervolle houtkachel en op de tweede verdieping is een royale dakkapel aanwezig. De achtertuin is een heerlijke plek om te ontspannen. De woning ligt in een geliefde en kindvriendelijke woonwijk met diverse speelplekken in de buurt. Basisschool De Stifthorst, het groene Kasteelbos en de winkels in het dorpshart zijn allemaal op loopafstand te bereiken. Kortom: dit is een leuke kans voor jou en je gezin! Neem contact met ons op voor meer informatie of om een bezichtiging in te plannen — je bent van harte welkom.

Deze woning heeft een eigen website met o.a. fullscreen foto's. Kijk op duystvanvoorhoutweg43.nl voor alle informatie.

Indeling

Via de hal kom je binnen in de woning. Hier vind je de meterkast (met glasvezelaansluiting) en een toiletruimte met wandcloset en fonteintje. Aan de achterzijde van de woning ligt de keuken. Er is plek voor een eethoek en hier is comfortabele vloerverwarming aanwezig. De keuken in hoekopstelling is uitgerust met alle gemakken: een kookplaat, afzuigkap, combi-oven, koelkast en een vaatwasser. Ook vind je hier een toegangsdeur naar de tuin. Aan de voorzijde bevindt zich de woonkamer. De woonkamer heeft een warme en sfeervolle uitstraling, mede dankzij de fraaie houtkachel. De begane grond is grotendeels voorzien van een stijlvolle pvc-vloer.

Eerste verdieping

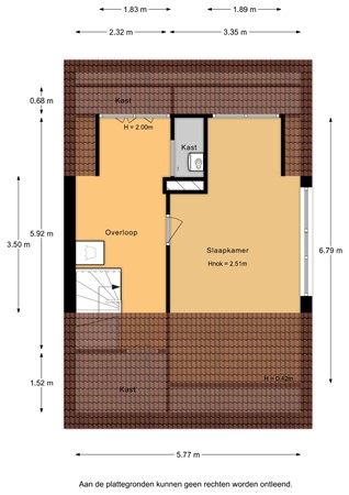
Op de eerste verdieping bevinden zich drie slaapkamers en de badkamer. De geheel betegelde badkamer is aan de voorzijde van de woning gelegen. Hier vind je een douche in bad, wastafelmeubel en een toilet. De ouderslaapkamer bevindt zich ook aan de voorzijde en aan de achterzijde van de woning zijn nog twee slaapkamers te vinden. Op de overloop is een ruime bergkast aanwezig.

Tweede verdieping

Via een vaste trap bereik je de ruime zolderverdieping. Op de overloop zijn de aansluitingen voor de wasmachine en droger, evenals een kast met de cv-installatie (Atag, 2013) aanwezig. Achter de knieschotten is extra bergruimte en daarnaast is er een vierde royale slaapkamer gerealiseerd. Er is op deze verdieping volop extra daglicht en ruimte dankzij de grote dakkapel en een groot raam in de zijgevel. Ook deze verdieping is keurig afgewerkt.

Bijzonderheden

De fraai ingerichte achtertuin is een heerlijke plek om buiten te zijn. Er is een bestraat terras, gazon, groene borders en een houthok. De sfeervolle veranda biedt fijne plek om te ontspannen en is een behaaglijke zitplek. Via de poort naast de woning is de tuin achterom bereikbaar. De berging achter in de tuin biedt voldoende ruimte voor je fietsen en/of (tuin)gereedschap en middels een vaste trap is de vliering bereikbaar. De woning beschikt aan voorzijde over 10 zonnepanelen. Tot slot is er in de wijk voldoende parkeergelegenheid en ook aan speelruimte voor kinderen is geen gebrek.

Kaart

Kenmerken

Overdracht

Vraagprijs
€ 529.000,- k.k.
Aanvaarding
In overleg
Laatste wijziging
Maandag 23 februari 2026

Bouw

Type object
Woonhuis, eengezinswoning, hoekwoning
Soort bouw
Bestaande bouw
Bouwperiode
1968
Dakbedekking
Dakpannen
Type dak
Zadeldak
Keurmerken
Energie prestatie advies
Isolatievormen
Volledig geïsoleerd

Oppervlaktes en inhoud

Perceeloppervlakte
233 m²
Woonoppervlakte
128 m²
Inhoud
430 m³
Oppervlakte externe bergruimte
27 m²
Oppervlakte gebouwgebonden buitenruimte
2 m²

Indeling

Aantal bouwlagen
3
Aantal kamers
5 (waarvan 4 slaapkamers)
Aantal badkamers
1 (en 1 apart toilet)

Locatie

Ligging
Aan rustige weg
In woonwijk

Tuin

Type
Achtertuin
Hoofdtuin
Ja
Heeft een achterom
Ja
Staat
Prachtig aangelegd
Tuin 2 - Type
Voortuin
Tuin 2 - Staat
Prachtig aangelegd

Energieverbruik

Energielabel
A+

CV ketel

CV ketel
Atag
Warmtebron
Gas
Bouwjaar
2013
Combiketel
Ja
Eigendom
Eigendom

Uitrusting

Warm water
CV-ketel
Verwarmingssysteem
Centrale verwarming
Houtkachel
Vloerverwarming (gedeeltelijk)
Warmtepomp
Ventilatie methode
Mechanische ventilatie
Keukenvoorzieningen
Inbouwapparatuur
Badkamervoorzieningen
Douche
Ligbad
Toilet
Wastafel
Wastafelmeubel
Heeft een rookkanaal
Ja
Glasvezelaansluiting aanwezig
Ja
Tuin aanwezig
Ja
Heeft schuur/berging
Ja
Heeft zonnepanelen
Ja
Heeft ventilatie
Ja

Kadastrale gegevens

Kadastrale aanduiding
Renswoude A 1057
Perceeloppervlakte
233 m²
Omvang
Geheel perceel
Eigendomsituatie
Eigen grond

Media

Video

Virtuele tour

Plattegronden

Brochure(s) en overige bijlagen

Duyst van Voorhoutweg 43, 3927 BM RENSWOUDE (1) Download