Open huis: 28 maart 11:00 - 15:00
Koop:Eikenlaan 21, 3927 AG Renswoude - Foto
+52

Eikenlaan 21 3927 AG Renswoude € 469.000,- k.k.

  • Woonhuis
  • 5 kamers
  • 4 slaapkamers
  • 1 badkamer
  • Bouwjaar 1964
  • 186 m² perceeloppervlakte
  • 106 m² gebruiksoppervlakte
  • A+ Energielabel A+
Deze woning heeft een unieke website: www.eikenlaan21.nl

Beschrijving

Aan de rand van het dorp Renswoude staat aan Eikenlaan 21 deze verrassend ruime tussenwoning met garage te koop. Deze uitgebouwde woning van bouwjaar 1964, is in de afgelopen jaren gemoderniseerd en beschikt over een energielabel A+. Dankzij de royale uitbouw aan de achterzijde geniet je van opvallend veel leefruimte met een sfeervolle open keuken en een praktische bijkeuken. Daarnaast is de woning uitgerust met 10 zonnepanelen, een moderne badkamer en een dakkapel op de 2e verdieping, wat zorgt voor extra ruimte. Het perceel van maar liefst 186 m² is gunstig gelegen met alle dagelijkse voorzieningen binnen handbereik, zoals scholen, kinderopvang, zorgfaciliteiten, sportverenigingen en het gezellige dorpscentrum. Voor liefhebbers van natuur en ontspanning ligt het prachtige Kasteelbos Renswoude op loopafstand. Nieuwsgierig geworden? Neem gerust contact met ons op voor een bezichtiging. Je bent van harte welkom om deze mooie woning zelf te komen ervaren!

Deze woning heeft een eigen website met o.a. fullscreen foto's. Kijk op eikenlaan21.nl voor alle informatie.

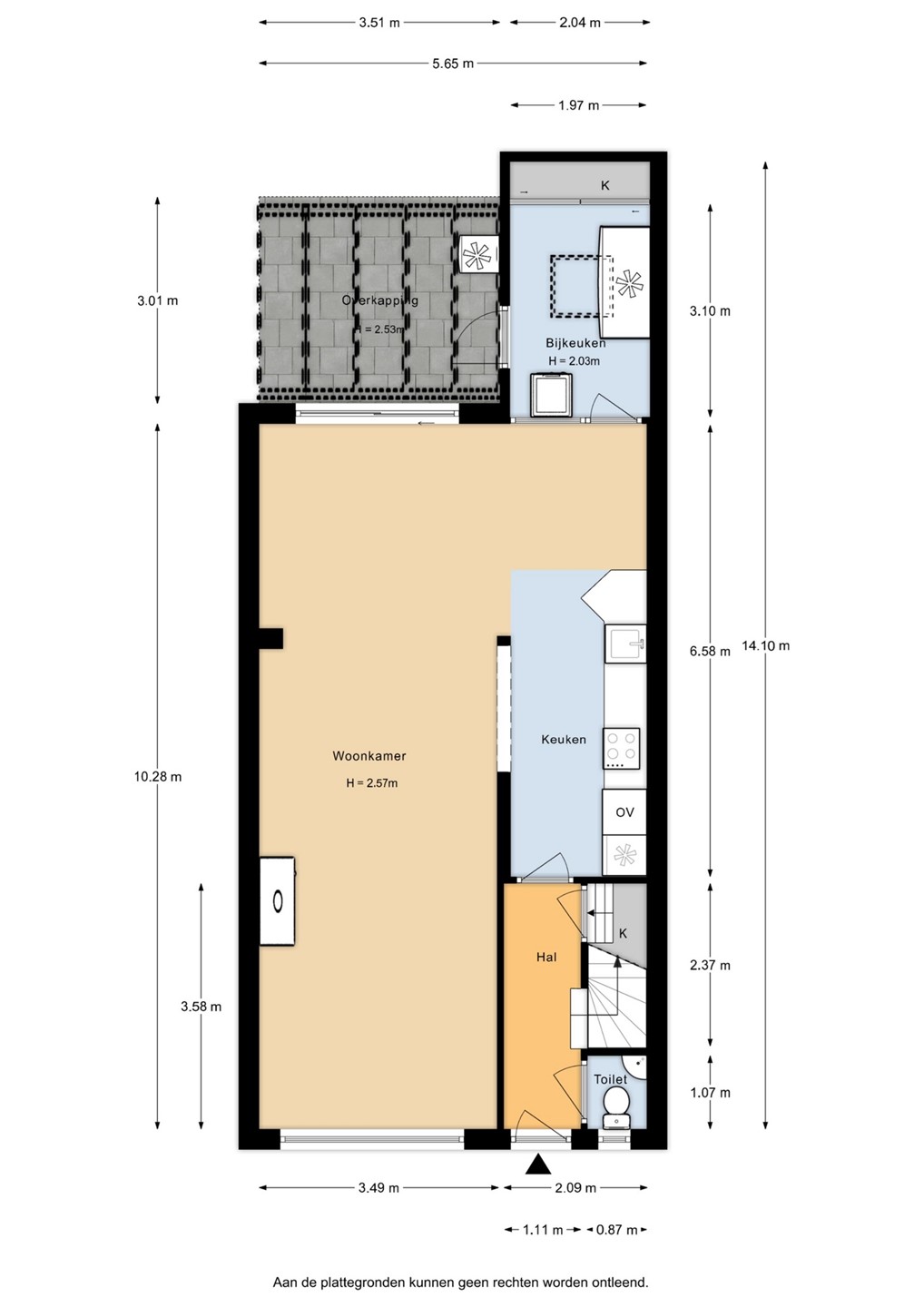
Indeling

Via de entree kom je binnen in de hal, die toegang biedt tot de moderne toiletruimte met wandcloset en fontein, de trap naar de eerste verdieping, een praktische provisieruimte en de keuken. De keuken is voorzien van een nieuw werkblad en kraan (2025) en uitgerust met diverse inbouwapparatuur, waaronder een inductiekookplaat, afzuigkap, combi-oven, koelkast en vaatwasser. Dankzij de royale uitbouw aan de achterzijde is er volop ruimte voor een grote eethoek. Via de schuifpui stap je zo onder de overkapping – ideaal voor een fijne overgang tussen binnen en buiten. Aansluitend bereik je vanuit de keuken de bijkeuken. Hier vind je een vaste kastenwand met schuifdeuren, aansluitingen voor de wasmachine en droger en eveneens toegang tot de overkapping. De woonkamer bevindt zich aan de voorzijde van de woning en is voorzien van een sfeervolle houtkachel, wat zorgt voor extra warmte en gezelligheid.

Eerste verdieping

Vanaf de overloop zijn 3 slaapkamers en de badkamer toegankelijk. De moderne badkamer is in 2023 vernieuwd en beschikt over een douche, wandcloset en een stijlvol wastafelmeubel met dubbele kraan. De badkamer en de naastgelegen ouderslaapkamer bevinden zich aan de voorzijde van de woning. Deze ruime ouderslaapkamer is voorzien van een praktische vaste schuifkastenwand. Aan de achterzijde liggen de 2 overige slaapkamers. De grootste van deze kamers biedt bovendien toegang tot het platte dak.

Tweede verdieping

Via een vaste trap bereik je de overloop van de tweede verdieping, die toegang geeft tot de vierde slaapkamer. Deze kamer is voorzien van een dakkapel en airconditioning, wat zorgt voor extra ruimte en comfort. Op de overloop bevinden zich tevens de c.v.-installatie en de hybride warmtepomp. Daarnaast is er volop bergruimte aanwezig, zowel achter de knieschotten als in een praktische bergkast.

Bijzonderheden

De diepe achtertuin is voorzien van een aangebouwde overkapping, een praktische garage en achterom bereikbaar. Met groene borders en een bestraat terras biedt de tuin een fijne, gezellige plek om te ontspannen en te genieten van het buitenleven. Op het perceel staat een vrijstaande houten garage van circa 18 m², ideaal voor het stallen van fietsen of extra opslag. Op het dak van de woning zijn bovendien 10 zonnepanelen geplaatst. De kindvriendelijke woonwijk beschikt daarnaast over ruime parkeergelegenheid en diverse speelvoorzieningen in de buurt. Kortom: een heerlijke woning die zeker een bezichtiging waard is!

Kaart

Kenmerken

Overdracht

Vraagprijs
€ 469.000,- k.k.
Aanvaarding
In overleg
Laatste wijziging
Maandag 9 maart 2026

Bouw

Type object
Woonhuis, eengezinswoning, tussenwoning
Soort bouw
Bestaande bouw
Bouwperiode
1964
Dakbedekking
Dakpannen
Type dak
Zadeldak
Keurmerken
Energie prestatie advies
Isolatievormen
Dubbel glas
HR-glas
Muurisolatie
Vloerisolatie

Oppervlaktes en inhoud

Perceeloppervlakte
186 m²
Woonoppervlakte
105,5 m²
Inhoud
409 m³
Oppervlakte overige inpandige ruimten
10,4 m²
Oppervlakte externe bergruimte
21,9 m²
Oppervlakte gebouwgebonden buitenruimte
27,4 m²

Indeling

Aantal bouwlagen
3
Aantal kamers
5 (waarvan 4 slaapkamers)
Aantal badkamers
1 (en 1 apart toilet)

Locatie

Ligging
Aan rustige weg
In woonwijk

Tuin

Type
Achtertuin
Hoofdtuin
Ja
Oriëntering
Noorden
Staat
Prachtig aangelegd
Tuin 2 - Type
Achtertuin
Tuin 2 - Oriëntering
Zuiden
Tuin 2 - Staat
Prachtig aangelegd

Energieverbruik

Energielabel
A+

CV ketel

Warmtebron
Gas
Bouwjaar
2012
Combiketel
Ja
Eigendom
Eigendom

Uitrusting

Warm water
CV-ketel
Verwarmingssysteem
Airconditioning
Centrale verwarming
Houtkachel
Warmtepomp
Ventilatie methode
Natuurlijke ventilatie
Keukenvoorzieningen
Inbouwapparatuur
Badkamervoorzieningen
Douche
Dubbele wastafel
Toilet
Wastafelmeubel
Parkeergelegenheid
Vrijstaande houten garage
Heeft airco
Ja
Glasvezelaansluiting aanwezig
Ja
Tuin aanwezig
Ja
Heeft een garage
Ja
Heeft rolluiken
Ja
Heeft een dakraam
Ja
Heeft een schuifpui
Ja
Heeft zonwering
Ja
Heeft zonnepanelen
Ja

Kadastrale gegevens

Kadastrale aanduiding
Renswoude C 1362
Perceeloppervlakte
176 m²
Omvang
Geheel perceel
Eigendomsituatie
Eigen grond
Kadastrale aanduiding
Renswoude C 3687
Perceeloppervlakte
10 m²
Omvang
Deel perceel
Eigendomsituatie
Eigen grond

Media

Video

Virtuele tour

Plattegronden

Brochure(s) en overige bijlagen

Eikenlaan 21, 3927 AG RENSWOUDE (1) Download
Open huis 28 maart 11:00 - 15:00