+46

Kwikstaartweide 2 3927 SN Renswoude € 750.000,- k.k.

  • Woonhuis
  • 5 kamers
  • 4 slaapkamers
  • 1 badkamers
  • Bouwjaar 2018
  • 286 m² perceeloppervlakte
  • 168 m² gebruiksoppervlakte
  • Gestoffeerd
  • A Energielabel A
Deze woning heeft een unieke website: www.kwikstaartweide2.nl

Beschrijving

In de jonge en populaire nieuwbouwwijk Beekweide in Renswoude staat deze instapklare twee-onder-een-kapwoning (bouwjaar 2018) te koop. De woning is duurzaam gebouwd (energielabel A), voorzien van 12 zonnepanelen en ligt op een mooi perceel van 286 m². Je woont hier comfortabel met o.a. vloerverwarming op de begane grond, strak gestucte wanden, een ruime woonkeuken én een zonnige achtertuin op het zuiden. Dankzij de luxe pergola met elektrisch schaduwdoek en screens kun je hier het hele jaar door heerlijk buiten zitten. De woning ligt op een fijne plek: dichtbij het dorpscentrum, basisscholen, kinderopvang én het prachtige Kasteelbos van Renswoude. Maak kennis met een woning op een werkelijk unieke locatie, precies in het hart van Nederland. Grote steden als Amersfoort (ca. 20 minuten) en Utrecht (ca. 30 minuten) zijn snel en eenvoudig bereikbaar. De aansluitingen op de A12 en A1 liggen op korte afstand, waardoor u in no time onderweg bent. Ook met het openbaar vervoer zit u goed: intercitystation De Klomp bevindt zich op slechts 10 minuten afstand. Kortom, een ideale uitvalsbasis voor wie rustig wil wonen maar toch alle voorzieningen binnen handbereik wil hebben. Een rustige, kindvriendelijke buurt met alle voorzieningen binnen handbereik. Nieuwsgierig? Maak een afspraak voor een bezichtiging, je bent van harte welkom!

Deze woning heeft een eigen website met o.a. fullscreen foto's. Kijk op kwikstaartweide2.nl voor alle informatie.

Indeling

Je komt binnen in de hal met toegang tot het toilet (wandcloset met fontein), de trap naar boven, een praktische trapkast en de woonkamer. De woonkamer ligt aan de voorzijde van het huis en is voorzien van een sfeervolle erker én een gezellige haard. Aan de achterzijde bevindt zich de open woonkeuken met kook-/spoeleiland en een rechte opstelling. De keuken is luxe uitgevoerd met een inductiekookplaat, afzuigkap, combi-oven, koelkast, vriezer, vaatwasser en een Quooker. Er is volop ruimte voor een grote eettafel en via de openslaande deuren stap je zo de tuin in. De hele begane grond is afgewerkt met vloerverwarming voor extra comfort.

Eerste verdieping

Op deze verdieping vind je drie slaapkamers en de badkamer. De ruime ouderslaapkamer beschikt over een fijne inloopkast. De badkamer ligt aan de achterzijde en is volledig betegeld. Je vindt hier een ligbad, inloopdouche, wandcloset en een modern wastafelmeubel. Alle slaapkamers hebben draai-/kiepramen en zijn netjes afgewerkt met een laminaatvloer.

Tweede verdieping

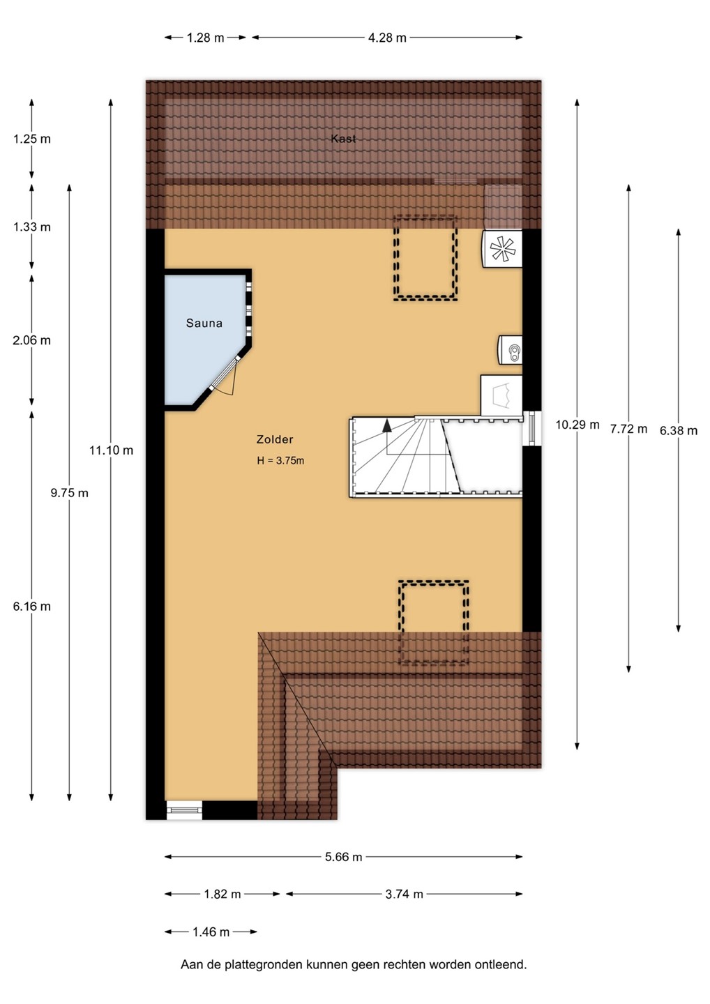
De zolder is bereikbaar via een vaste trap en heeft twee Velux dakramen die zorgen voor veel daglicht. Hier zijn de aansluitingen voor de wasmachine en droger te vinden, evenals de cv-installatie (Intergas, 2018). Deze verdieping biedt volop mogelijkheden: bijvoorbeeld om een extra slaapkamer of werkruimte te realiseren.

Bijzonderheden

De zonnige achtertuin op het zuiden is via de zijpoort bereikbaar en is sfeervol ingericht met een luxe pergola met elektrisch schaduwdoek en screens. Dankzij de openslaande deuren aan de achterzijde loopt binnen naadloos over in buiten – perfect voor lange zomeravonden. Verder is er voor het opbergen van je spullen een houten berging en een aangebouwde garage aanwezig. Aan de voorzijde heb je parkeergelegenheid op eigen terrein, en in de buurt is voldoende ruimte om te parkeren en te spelen. Aan de achterzijde zijn deels rolluiken aanwezig voor extra comfort. Ben jij op zoek naar een moderne, energiezuinige woning waar je zó in kunt? Dan is Kwikstaartweide 2 zeker het bekijken waard. Neem contact met ons op voor een bezichtiging – je bent van harte welkom!

Kaart

Kenmerken

Overdracht

Vraagprijs
€ 750.000,- k.k.
Inrichting
Ja
Inrichting
Gestoffeerd
Aanvaarding
In overleg
Laatste wijziging
Maandag 1 december 2025

Bouw

Type object
Woonhuis, eengezinswoning, twee onder een kap woning
Soort bouw
Bestaande bouw
Bouwperiode
2018
Dakbedekking
Dakpannen
Type dak
Samengesteld
Keurmerken
Energie prestatie advies
Isolatievormen
Volledig geïsoleerd

Oppervlaktes en inhoud

Perceeloppervlakte
286 m²
Woonoppervlakte
168 m²
Inhoud
616 m³
Oppervlakte overige inpandige ruimten
19 m²
Oppervlakte externe bergruimte
5 m²

Indeling

Aantal bouwlagen
3
Aantal kamers
5 (waarvan 4 slaapkamers)
Aantal badkamers
1 (en 1 apart toilet)

Tuin

Type
Tuin rondom
Oriëntering
Zuiden
Staat
Prachtig aangelegd

Energieverbruik

Energielabel
A

CV ketel

CV ketel
Intergas
Warmtebron
Gas
Bouwjaar
2018
Combiketel
Ja
Eigendom
Eigendom

Uitrusting

Aantal parkeerplaatsen
3
Aantal overdekte parkeerplaatsen
1
Warm water
CV-ketel
Verwarmingssysteem
Centrale verwarming
Gashaard
Vloerverwarming (gedeeltelijk)
Ventilatie methode
Mechanische ventilatie
Keukenvoorzieningen
Inbouwapparatuur
Kookeiland
Spoeleiland
Badkamervoorzieningen
Inloopdouche
Ligbad
Toilet
Wastafel
Wastafelmeubel
Parkeergelegenheid
Aangebouwde stenen garage
Glasvezelaansluiting aanwezig
Ja
Tuin aanwezig
Ja
Heeft een garage
Ja
Beschikt over een internetverbinding
Ja
Heeft rolluiken
Ja
Heeft schuur/berging
Ja
Heeft een dakraam
Ja
Heeft zonnepanelen
Ja
Heeft ventilatie
Ja

Kadastrale gegevens

Kadastrale aanduiding
Renswoude C 3724
Perceeloppervlakte
286 m²
Omvang
Geheel perceel
Eigendomsituatie
Eigen grond

Media

Video

Virtuele tour

Plattegronden

Brochure(s) en overige bijlagen

Kwikstaartweide 2, 3927 SN RENSWOUDE (1) Download