Nieuw in verkoop:Watersnipweide 28, 3927 SL Renswoude - Foto
Nieuw in verkoop
+35

Watersnipweide 28 3927 SL Renswoude € 459.000,- k.k.

  • Woonhuis
  • 4 kamers
  • 3 slaapkamers
  • 1 badkamers
  • Bouwjaar 2011
  • 102 m² perceeloppervlakte
  • 88 m² gebruiksoppervlakte
  • A Energielabel A
Deze woning heeft een unieke website: www.watersnipweide28.nl

Beschrijving

Ben je op zoek naar een fijne gezinswoning in de jonge, kindvriendelijke wijk Beekweide in Renswoude? Dan is Watersnipweide 28 precies wat je zoekt! Deze instapklare tussenwoning biedt alles wat je nodig hebt: een gezellige woonkamer, drie ruime slaapkamers, 9 zonnepanelen (energielabel A) én een fraai aangelegde achtertuin. De ligging is ideaal – dichtbij alle dagelijkse voorzieningen én op loopafstand van het Kasteelbos van Renswoude. Nieuwsgierig? Maak snel een afspraak voor een bezichtiging. Je bent van harte welkom!

Deze woning heeft een eigen website met o.a. fullscreen foto's. Kijk op watersnipweide28.nl voor alle informatie.

Indeling

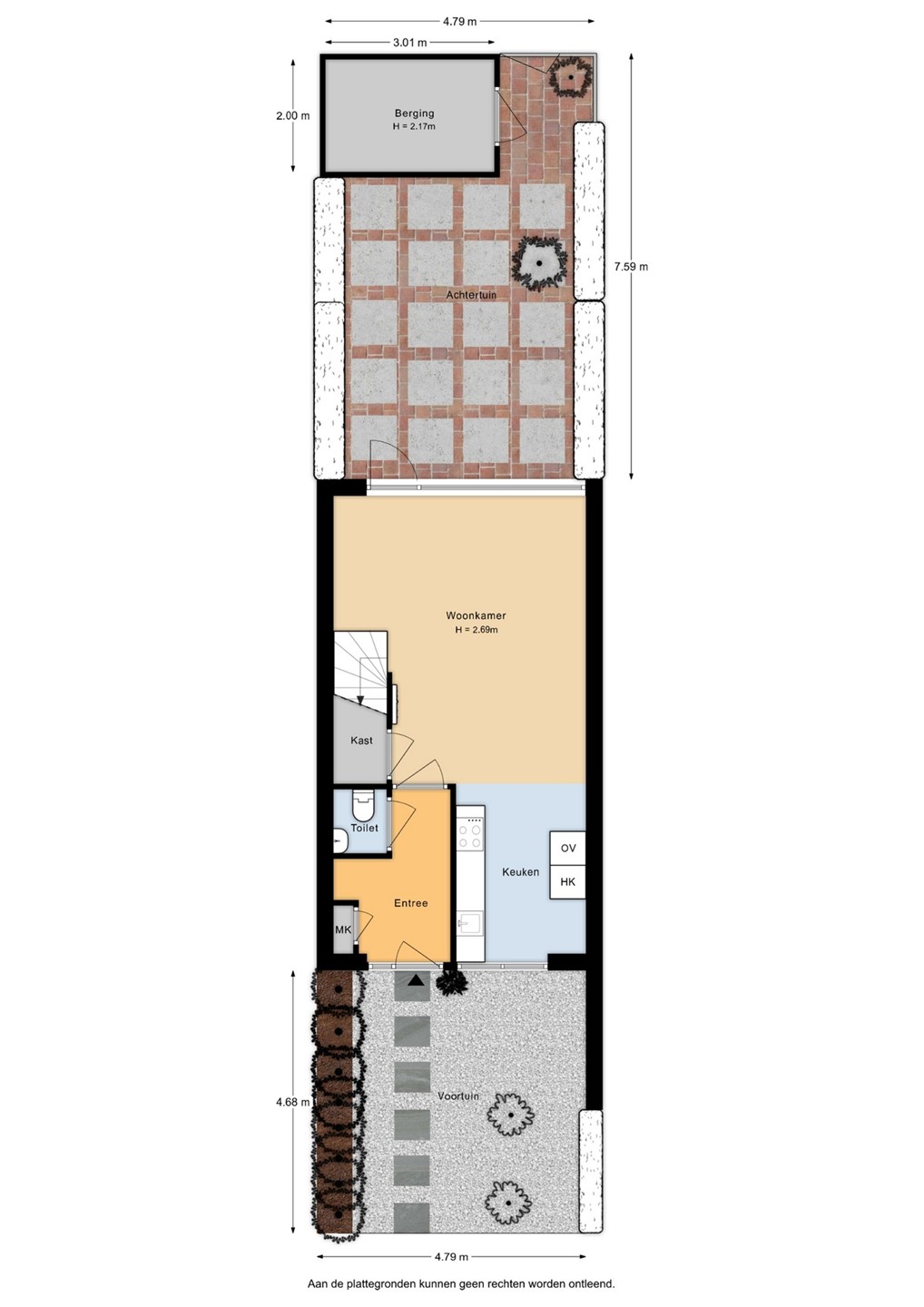
Via de entree kom je in de hal, met toegang tot de meterkast (inclusief glasvezel), het toilet en de woonkamer. De woonkamer is lekker licht en sfeervol, met aan de achterzijde een loopdeur naar het terras. Dankzij de airco zit je hier altijd comfortabel, ongeacht het seizoen. De haard zorgt voor extra gezelligheid, en onder de trap vind je handige bergruimte. Aan de voorzijde van de woning ligt de moderne keuken in rechte opstelling, met een extra apparatenkast. Je vindt hier diverse inbouwapparatuur zoals een kookplaat, afzuigkap, combi-oven, koel-/vriescombinatie en een vaatwasser. Er is bovendien voldoende plek voor een eethoek. De hele begane grond is netjes afgewerkt met een mooie houten vloer.

Eerste verdieping

Via de vaste trap bereik je de overloop met toegang tot twee slaapkamers en de badkamer. De volledig betegelde badkamer is voorzien van een douche, toilet, wastafelmeubel en een Velux-dakraam voor natuurlijk licht en ventilatie. Aan de achterzijde ligt een ruime slaapkamer met dakraam, en aan de voorzijde vind je de ouderslaapkamer. Deze verdieping is afgewerkt met vloerbedekking.

Tweede verdieping

Ook deze verdieping bereik je via een vaste trap. Hier vind je een ruime overloop én een derde slaapkamer met dakraam. Extra opbergruimte is er achter de knieschotten én op de vliering (bereikbaar via een luik). Op de overloop zijn ook de cv-installatie (Intergas 2011) en de aansluitingen voor wasmachine en droger te vinden. Net als de eerste verdieping is ook deze etage voorzien van vloerbedekking.

Bijzonderheden

De achtertuin is zowel via de woonkamer als via een achterom bereikbaar. Deze is keurig aangelegd met sierbestrating en groene erfafscheiding, waardoor je hier volop privacy hebt. In de praktische berging is ruimte voor fietsen en tuingereedschap. De woning ligt in de geliefde wijk Beekweide: een rustige, kindvriendelijke buurt met voldoende parkeergelegenheid en speelruimte in de omgeving. Laat je verrassen door de ruimte, het comfort en de fijne ligging van deze woning. Zien we je binnenkort voor een bezichtiging?

Kaart

Kenmerken

Overdracht

Vraagprijs
€ 459.000,- k.k.
Inrichting
Niet gestoffeerd
Inrichting
Niet gemeubileerd
Status
Nieuw in verkoop
Aanvaarding
In overleg

Bouw

Type object
Woonhuis, eengezinswoning, tussenwoning
Soort bouw
Bestaande bouw
Bouwperiode
2011
Dakbedekking
Dakpannen
Type dak
Zadeldak
Keurmerken
Energie prestatie advies
Isolatievormen
Volledig geïsoleerd

Oppervlaktes en inhoud

Perceeloppervlakte
102 m²
Woonoppervlakte
88,4 m²
Inhoud
309 m³
Oppervlakte externe bergruimte
6 m²

Indeling

Aantal bouwlagen
4
Aantal kamers
4 (waarvan 3 slaapkamers)
Aantal badkamers
1 (en 1 apart toilet)

Locatie

Ligging
Aan rustige weg
In woonwijk

Tuin

Type
Achtertuin
Hoofdtuin
Ja
Heeft een achterom
Ja
Staat
Prachtig aangelegd
Tuin 2 - Type
Achtertuin
Tuin 2 - Staat
Prachtig aangelegd

Energieverbruik

Energielabel
A

CV ketel

CV ketel
Intergas
Warmtebron
Gas
Bouwjaar
2011
Combiketel
Ja
Eigendom
Eigendom

Uitrusting

Warm water
CV-ketel
Verwarmingssysteem
Centrale verwarming
Ventilatie methode
Mechanische ventilatie
Keukenvoorzieningen
Inbouwapparatuur
Badkamervoorzieningen
Douche
Toilet
Wastafel
Wastafelmeubel
Heeft airco
Ja
Glasvezelaansluiting aanwezig
Ja
Tuin aanwezig
Ja
Heeft rolluiken
Ja
Heeft schuur/berging
Ja
Heeft een dakraam
Ja
Heeft zonwering
Ja
Heeft zonnepanelen
Ja
Heeft ventilatie
Ja

Kadastrale gegevens

Kadastrale aanduiding
Renswoude C 3192
Perceeloppervlakte
102 m²
Omvang
Geheel perceel
Eigendomsituatie
Eigen grond

Media

Video

Virtuele tour

Plattegronden

Brochure(s) en overige bijlagen

Watersnipweide 28, 3927 SL RENSWOUDE (1) Download