Verkocht:Zuiderkruis 116, 3902 XC Veenendaal - Foto
Verkocht
+33

Zuiderkruis 116 3902 XC Veenendaal

  • Appartement
  • 4 kamers
  • 3 slaapkamers
  • 1 badkamers
  • Bouwjaar 1972
  • 84 m² gebruiksoppervlakte
  • E Energielabel E

Beschrijving

Altijd al op loopafstand van het centrum van Veenendaal willen wonen? Dan is dit ruime 4-kamerappartement aan Zuiderkruis 116 wellicht wat voor jou! Het appartement van bouwjaar 1972 is gelegen op de 5e verdieping en biedt een vrij uitzicht over de groenstrook en het stadspark van Veenendaal. Daarnaast is er o.a. een balkon op het zuidwesten, 3 slaapkamers en is er een lift in dit complex aanwezig. Een heerlijke plek met alle voorzieningen die de stad Veenendaal te bieden om de hoek. Ook is er een voldoende parkeer- en speelgelegenheid rondom het appartementencomplex aanwezig. Hebben wij je interesse gewekt? Neem dan gerust contact met ons op voor een bezichtigingsafspraak. Je bent van harte welkom!

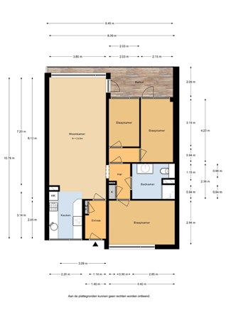
Indeling

De afgesloten centrale entree met brievenbussen en intercomsysteem geeft toegang tot het trappenhuis (lift aanwezig). Vanuit deze ruimte zijn de verschillende etages en bergingen te bereiken. Huisnummer 116 bevindt zich op de 5e etage.

5e etage: Via de galerij bereik je de entree van het appartement. Bij binnenkomst in de hal is er een meterkast aanwezig en is de woonkamer toegankelijk. Er is een open keuken met dubbele rechte opstelling en de woonkamer beschikt over een deur naar het balkon. Via een portaal zijn de 3 slaapkamers en de badkamer bereikbaar. De geheel betegelde badkamer is voorzien van een douche, wastafelmeubel en een toilet. De ouderslaapkamer bevindt zich aan de voorzijde van het appartement en één van de slaapkamers aan de achterzijde biedt eveneens toegang tot het balkon.

Bijzonderheden

Het balkon bevindt zich op het zuidwesten met een vrij zicht. Op de begane grond heb je een eigen berging en er is voldoende gelegen om bij het appartementencomplex te parkeren. De te betalen maandelijkse bijdragen aan de VvE zijn circa € 275,- per maand (incl. voorschot energie).

Kaart

Kenmerken

Overdracht

Vraagprijs
€ 275.000,- k.k.
Status
Verkocht
Aanvaarding
In overleg
Laatste wijziging
Dinsdag 10 december 2024

Bouw

Type object
Appartement, galerijflat
Woonlaag
5e woonlaag
Soort bouw
Bestaande bouw
Bouwperiode
1972
Dakbedekking
Bitumen
Type dak
Platdak
Keurmerken
Energie prestatie advies
Isolatievormen
Dakisolatie
Dubbel glas

Oppervlaktes en inhoud

Woonoppervlakte
84 m²
Inhoud
270 m³
Oppervlakte externe bergruimte
7 m²
Oppervlakte gebouwgebonden buitenruimte
10 m²

Indeling

Aantal bouwlagen
1
Aantal kamers
4 (waarvan 3 slaapkamers)
Aantal badkamers
1

Locatie

Ligging
In woonwijk

Energieverbruik

Energielabel
E

Uitrusting

Warm water
Elektrische boiler
Verwarmingssysteem
Blokverwarming
Badkamervoorzieningen
Douche
Toilet
Wastafel
Wastafelmeubel
Heeft een balkon
Ja
Heeft schuur/berging
Ja

Vereniging van Eigenaren

Ingeschreven bij de KvK
Ja
Jaarlijkse vergadering
Ja
Periodieke bijdrage
Ja
Reservefonds
Ja
Meer jaren onderhoudsplan
Ja
Onderhoudsverwachting
Ja
Opstal verzekering
Ja

Kadastrale gegevens

Kadastrale aanduiding
Veenendaal K 2304
Omvang
Appartementsrecht of complex
Eigendomsituatie
Eigen grond

Media

Video

Virtuele tour

Plattegronden

Brochure(s) en overige bijlagen

Zuiderkruis 116, 3902 XC VEENENDAAL (1) Download