Verkocht:De Schans 33, 6733 ER Wekerom - Foto
Verkocht
+39

De Schans 33 6733 ER Wekerom

  • Woonhuis
  • 5 kamers
  • 4 slaapkamers
  • 1 badkamers
  • Bouwjaar 2017
  • 137 m² perceeloppervlakte
  • 119 m² gebruiksoppervlakte
  • A Energielabel A

Beschrijving

Aan de rand van het dorp in de populaire en kindvriendelijke wijk ‘Dirkjeserf’ staat deze fijne tussenwoning te koop. Deze jonge gezinswoning van bouwjaar 2017 beschikt over 7 zonnepanelen, energielabel A (volledig geïsoleerd) en 4 keurige slaapkamers. Overige aandachtspunten die wij graag benoemen zijn de moderne keuken met vrij uitzicht aan de voorzijde, sfeervolle woonkamer met houtkachel en de fijne achtertuin met overkapping. Daarnaast is de woning gesitueerd op een perceel van 137 m2 en zijn dorpsvoorzieningen waaronder scholen en een supermarkt in Wekerom op loopafstand. Ook is de ligging ten opzicht van Ede, Barneveld en Het Nationale Park De Hoge Veluwe gunstig te noemen. Hebben wij je nieuwsgierig gemaakt naar deze fijne gezinswoning? Neem dan contact met ons op voor een bezichtigingsafspraak. Je bent van harte welkom!

Indeling

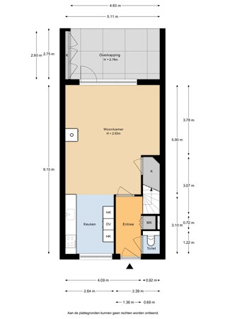
Via de entree is de hal bereikbaar die toegang geeft tot de meterkast, toiletruimte met wandcloset, trapopgang naar de 1e verdieping en de woonkamer. De woonkamer met sfeervolle houtkachel is aan de achterzijde van de woning gesitueerd; middels een loopdeur is de tuin vanuit de woonkamer direct bereikbaar. Aan de voorzijde van de woning is de moderne keuken gesitueerd met rechte opstelling en apparatenwand. De keuken beschikt over diverse inbouwapparatuur waaronder een inductiekookplaat, afzuigkap, combi-oven, koelkast en een vaatwasser. De gehele begane grond is keurig afgewerkt met een gestuukt plafond, inbouwspots en voorzien van een houten vloer.

Eerste verdieping

Via de vaste trap is de overloop van de 1e verdieping bereikbaar, die toegang geeft tot 3 slaapkamers en de badkamer. De badkamer is geheel betegeld en voorzien van een ligbad met douche, wandcloset en een wastafelmeubel. De 3 slaapkamers op deze verdieping zijn keurig afgewerkt met gestuukt plafond en laminaatvloer. De ouderslaapkamer beschikt over een vaste kastenwand, inbouwspots en een sfeervolle ombouw van houtpanelen achter hoofdeinde van het bed.

Tweede verdieping

Via de vaste trap bereik je de overloop op de tweede verdieping die toegang geeft tot 2 (slaap)kamers. De slaapkamer aan de voorzijde beschikt over inbouwkasten en 2 Velux-dakramen. In de kamer aan de achterzijde bevinden zich de aansluitingen voor de wasmachine en droger evenals de cv-installatie (Intergas 2017).

Bijzonderheden

De fraai aangelegde achtertuin ligt gunstig op het zuidwesten waardoor je de hele dag van de zon kunt genieten. Wil je liever in de schaduw zitten? Dat kan onder de aangebouwde overkapping. De tuin is tevens voorzien van een gazon, sierbestrating en een groene border. Daarnaast biedt de volledig geïsoleerde en over de gehele breedte uitgebouwde berging volop ruimte voor fietsen en tuingereedschap. Tot slot is in de wijk voldoende parkeer- en speelgelegenheid aanwezig.

Kaart

Kenmerken

Overdracht

Vraagprijs
€ 485.000,- k.k.
Status
Verkocht
Aanvaarding
In overleg
Laatste wijziging
Dinsdag 17 juni 2025

Bouw

Type object
Woonhuis, eengezinswoning, tussenwoning
Soort bouw
Bestaande bouw
Bouwperiode
2017
Dakbedekking
Dakpannen
Type dak
Zadeldak
Keurmerken
Energie prestatie advies
Isolatievormen
Dakisolatie
HR-glas
Muurisolatie
Spouwmuren
Vloerisolatie
Volledig geïsoleerd

Oppervlaktes en inhoud

Perceeloppervlakte
137 m²
Woonoppervlakte
119 m²
Inhoud
432 m³
Oppervlakte externe bergruimte
16 m²
Oppervlakte gebouwgebonden buitenruimte
13,3 m²

Indeling

Aantal bouwlagen
3
Aantal kamers
5 (waarvan 4 slaapkamers)
Aantal badkamers
1 (en 1 apart toilet)

Locatie

Ligging
In woonwijk

Tuin

Type
Achtertuin
Hoofdtuin
Ja
Oriëntering
Zuid-west
Heeft een achterom
Ja
Staat
Prachtig aangelegd
Tuin 2 - Type
Voortuin
Tuin 2 - Oriëntering
Noord-oost
Tuin 2 - Staat
Prachtig aangelegd

Energieverbruik

Energielabel
A

CV ketel

CV ketel
Intergas
Warmtebron
Gas
Bouwjaar
2017
Combiketel
Ja
Eigendom
Eigendom

Uitrusting

Warm water
CV-ketel
Verwarmingssysteem
Centrale verwarming
Houtkachel
Ventilatie methode
Mechanische ventilatie
Keukenvoorzieningen
Inbouwapparatuur
Badkamervoorzieningen
Douche
Ligbad
Toilet
Wastafelmeubel
Heeft een rookkanaal
Ja
Tuin aanwezig
Ja
Heeft schuur/berging
Ja
Heeft een dakraam
Ja
Heeft zonnepanelen
Ja
Heeft ventilatie
Ja

Kadastrale gegevens

Kadastrale aanduiding
Ede B 5767
Perceeloppervlakte
137 m²
Omvang
Geheel perceel
Eigendomsituatie
Eigen grond

Media

Video

Virtuele tour

Plattegronden

Brochure(s) en overige bijlagen

De Schans 33, 6733 ER WEKEROM (1) Download