Verkocht:Dorpsplein 10F, 6733 AV Wekerom - Foto
Verkocht
+42

Dorpsplein 10F 6733 AV Wekerom

  • Woonhuis
  • 6 kamers
  • 5 slaapkamers
  • 2 badkamers
  • Bouwjaar 2015
  • 340 m² perceeloppervlakte
  • 201 m² gebruiksoppervlakte
  • A+++ Energielabel A+++

Beschrijving

Welkom aan Dorpsplein 10F in Wekerom, een verrassend ruime, duurzame en modern afgewerkte twee-onder-een-kapwoning. Met een woonoppervlakte van maar liefst 201 m², vijf slaapkamers, twee badkamers en een zonnige achtertuin op het zuiden is dit een ideale gezinswoning waar comfort en ruimte centraal staan. De sfeervolle woonkamer is voorzien van een gezellige houtkachel en openslaande deuren naar de aangebouwde overkapping in de tuin, wat zorgt voor een fijne verbinding tussen binnen en buiten. De woning is toekomstbestendig dankzij de aanwezigheid van een warmtepomp, 43 zonnepanelen, 4 zonnecollectoren en vloerverwarming op zowel de begane grond als in de badkamers. Gelegen op een perceel van 340 m² in een kindvriendelijke buurt, bevinden voorzieningen zoals een basisschool, een supermarkt, sportschool (Kulturhus) en diverse sportverenigingen zich op loop- of fietsafstand. Daarnaast ligt de woning aan de rand van de Veluwe, een perfecte locatie voor wie houdt van rust, natuur en buitenleven. Hier woon je in een groene omgeving met volop mogelijkheden voor wandel- en fietstochten, terwijl je geniet van het comfort en de ruimte die deze woning te bieden heeft. Benieuwd geworden? Neem gerust contact met ons op voor een bezichtiging. Je bent van harte welkom.

Indeling

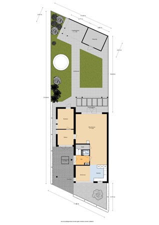
Via de overdekte entree is de hal bereikbaar, die toegang geeft tot de trapopgang naar de 1e verdieping, toiletruimte met wandcloset en fontein, meterkast (met glasvezelaansluiting en krachtstroom) en de woonkamer. De royale woonkamer bevindt zich aan de achterzijde van de woning en is voorzien van een sfeervolle houtkachel en openslaande deuren naar de tuin. Aan de voorzijde bevindt zich de keuken in U-opstelling, compleet met inbouwapparatuur waaronder een koelkast, 5-pits inductiekookplaat, afzuigkap, vaatwasser en combi-oven/magnetron. De eethoek bij de glazen pui biedt vrij uitzicht aan de voorzijde van de woning. Vanuit de woonkamer is de voormalige garage bereikbaar, welke nu is opgedeeld in twee ruimtes. Deze multifunctionele kamers zijn perfect geschikt als berging, bijkeuken, werk- of hobbyruimte. De gehele begane grond is afgewerkt met vloerverwarming en een strak gestuukt plafond.

Eerste verdieping

De overloop van de 1e verdieping geeft toegang tot de trapopgang naar de 1e verdieping, een separate toiletruimte, badkamer en 3 slaapkamers. De royale (ouder)slaapkamer strekt zich uit over de volledige breedte van de woning aan de achterzijde en beschikt over een inbouwkast en toegang tot een royaal balkon, gelegen op het oosten – ideaal voor de ochtendzon. De twee overige slaapkamers bevinden zich aan de voorzijde van de woning en zijn eveneens ruim en netjes afgewerkt. De volledig betegelde badkamer is voorzien van vloerverwarming, een whirlpool, inloopdouche en wastafelmeubel.

Tweede verdieping

Via een vaste trap bereik je de tweede verdieping, waar zich nog twee zeer ruime slaapkamers bevinden. Beide slaapkamers zijn voorzien van vaste kastruimte en Velux dakramen voor natuurlijk daglicht. De slaapkamer aan de achterzijde beschikt zelfs over een sfeervolle bedstee. Daarnaast tref je op deze verdieping een tweede badkamer met vloerverwarming, inloopdouche en wastafel, een separate toiletruimte én een praktische wasruimte. Hier bevinden zich de technische installaties, waaronder de warmtepomp met voorraadvat (Vaillant), omvormers voor de zonnepanelen/collectoren en de aansluitingen voor wasmachine en droger.

Bijzonderheden

De fraai aangelegde achtertuin, die achterom te bereiken is, ligt op het zuiden en biedt optimale zonligging. Dankzij meerdere zitplekken, waaronder een terras onder de aangebouwde overkapping, een gezellige veranda achterin de tuin en een gazon, is er altijd een fijne plek om buiten te ontspannen. De vrijstaande berging is ideaal voor fietsen en tuingereedschap, en is voorzien van dakisolatie. Parkeren kan op eigen oprit en in de rustige, kindvriendelijke wijk is er bovendien voldoende openbare parkeergelegenheid en speelruimte.

Kaart

Kenmerken

Overdracht

Vraagprijs
€ 769.000,- k.k.
Status
Verkocht
Aanvaarding
In overleg
Laatste wijziging
Dinsdag 26 augustus 2025

Bouw

Type object
Woonhuis, eengezinswoning, half vrijstaande woning
Soort bouw
Bestaande bouw
Bouwperiode
2015
Dakbedekking
Dakpannen
Type dak
Dwarskap
Keurmerken
Energie prestatie advies
Isolatievormen
Dakisolatie
HR-glas
Muurisolatie
Spouwmuren
Vloerisolatie
Volledig geïsoleerd

Oppervlaktes en inhoud

Perceeloppervlakte
340 m²
Woonoppervlakte
201 m²
Inhoud
735 m³
Oppervlakte externe bergruimte
11 m²
Oppervlakte gebouwgebonden buitenruimte
54 m²

Indeling

Aantal bouwlagen
3
Aantal kamers
6 (waarvan 5 slaapkamers)
Aantal badkamers
2 (en 3 aparte toiletten)

Locatie

Ligging
Aan rustige weg
In woonwijk

Tuin

Type
Voortuin
Oriëntering
Noorden
Staat
Prachtig aangelegd
Tuin 2 - Type
Achtertuin
Tuin 2 - Hoofdtuin
Ja
Tuin 2 - Oriëntering
Zuiden
Tuin 2 - Staat
Prachtig aangelegd

Energieverbruik

Energielabel
A+++

Uitrusting

Aantal parkeerplaatsen
1
Warm water
Zonnecollectoren
Verwarmingssysteem
Houtkachel
Vloerverwarming (gedeeltelijk)
Warmtepomp
Ventilatie methode
Mechanische ventilatie
Keukenvoorzieningen
Inbouwapparatuur
Badkamervoorzieningen Badkamer 1
Inloopdouche
Vloerverwarming
Wastafelmeubel
Whirlpool
Badkamervoorzieningen Badkamer 2
Inloopdouche
Wastafel
Heeft een balkon
Ja
Glasvezelaansluiting aanwezig
Ja
Tuin aanwezig
Ja
Heeft rolluiken
Ja
Heeft schuur/berging
Ja
Heeft een dakraam
Ja
Heeft zonnepanelen
Ja
Heeft zonnecollectoren
Ja
Heeft ventilatie
Ja

Kadastrale gegevens

Kadastrale aanduiding
Ede B 5612
Perceeloppervlakte
340 m²
Omvang
Geheel perceel
Eigendomsituatie
Eigen grond

Media

Video

Virtuele tour

Plattegronden

Brochure(s) en overige bijlagen

Dorpsplein 10-F, 6733 AV WEKEROM (1) Download